Venta - 2 Ambientes - Balcón - Suite - Belgrano - Entrega Junio 2025

Apartamento · 2 ambientes · 1 dormitorios · 1 baños · 64 m²

Olazábal al 2600 - Piso 1, Belgrano, Capital Federal
USD 203.300
0
En venta

Características principales de la propiedad

Tipo

Apartamento

Dormitorios

1

Baños

1

Ambientes

2

Área Total

64

Área Cubierta

60

Publicado

27 de abril de 2023

Descripción

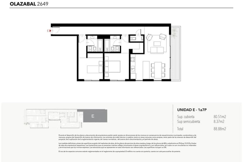
DEPARTAMENTO DE 2 AMBIENTES - BALCÓN - SUITE - TOILETTE - BELGRANOPasillo de recepción - Living comedor (9.65m x 2.80m) con acceso a balcón - Cocina (2.15m x 2.40m) - Toilette de recepción - Suite (3.05m x 3.10m) con placard.SUPERFICIESSup. Cub. 60.60m2Sup. Balcón terraza 3.84m2Sup. Tot. 64.44m2DETA...

Características

BalconPiletaSolariumGimnasioCerca de transporte publico

Ubicación

Planos

Plano 1
Plano 2
Plano 3
Plano 4
Plano 5
Plano 6
Plano 7

Análisis de mercado

Información del agente

I

Inmobiliaria

¿Sos de esta inmobiliaria?

Reclamá tu perfil gratis y conseguí más leads calificados con IA. Sin comisiones, sin límites.

Conocer más

Información sobre los datos

Los derechos de los datos de esta propiedad pertenecen a la inmobiliaria correspondiente. Roomix utiliza múltiples fuentes de portales inmobiliarios como ZonaProp, Argenprop, Mercado Libre y otros para indexar y mostrar propiedades disponibles en Argentina. Esta información se presenta únicamente con fines informativos y de búsqueda.

Propiedades cercanas

Propiedades similares