Pzo Caballito 2 Amb Fte Bcon Tza Amenities

Apartamento · 2 ambientes · 1 dormitorios · 1 baños · 82 m²

Puán 300, Caballito, Capital Federal
USD 165.000
0
En venta

Características principales de la propiedad

Tipo

Apartamento

Dormitorios

1

Baños

1

Ambientes

2

Área Total

82

Área Cubierta

63

Publicado

10 de abril de 2025

Descripción

Corredor Responsable: Ariel Champanier CUCICBA 4330 / Andrea Berré CMCPSI 6763 - Contacto: Mirta BarrutiEmprendimiento sobre la calle Puan 376/78 entre la calle Valle y la Avda Pedro Goyena, zona residencial del Barrio Ingles, de Caballito.UBICACION :Ubicada a media cuadra de la Av Pedro Goyena y a...

Características

Accesible para personas con movilidad reducidaCerca de transporte publicoPiletaTerrazaParrillaGimnasioBalcon

Ubicación

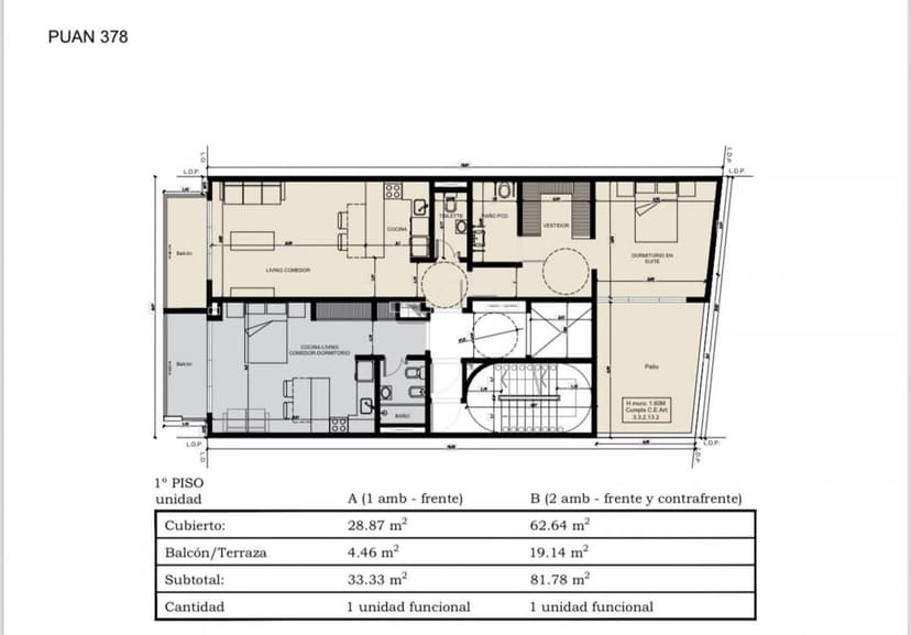
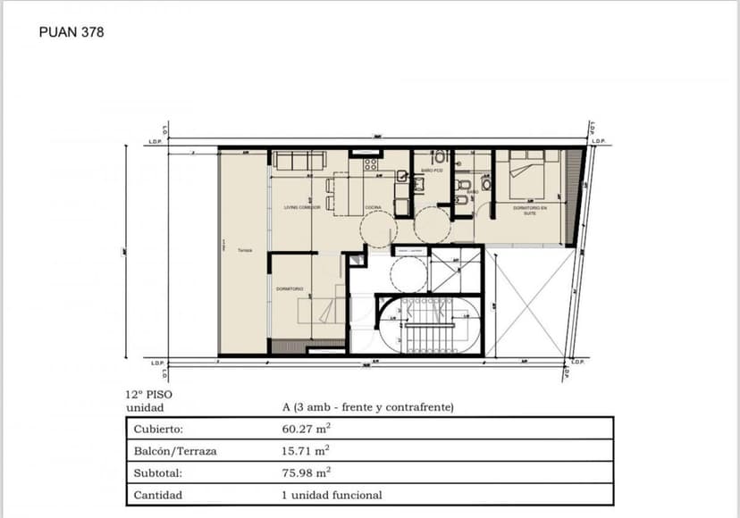
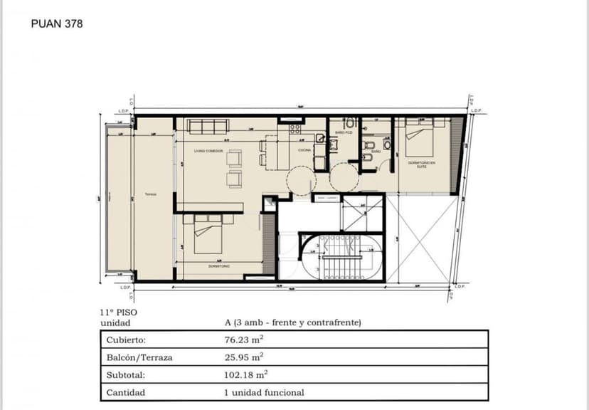
Planos

Plano 1
Plano 2
Plano 3
Plano 4
Plano 5
Plano 6

Análisis de mercado

Historial de Precios

Evolución del precio desde la publicación original

USD 165.000
Precio actual
Esta propiedad bajó un 8.6% su precio desde que se publicó
10 abr - 25 sept
USD -15.525(-8.6%)
Precio Original
USD 180.525
Precio Actual
USD 165.000
Cambios de Precio
2

Información del agente

I

Inmobiliaria

¿Sos de esta inmobiliaria?

Reclamá tu perfil gratis y conseguí más leads calificados con IA. Sin comisiones, sin límites.

Conocer más

Información sobre los datos

Los derechos de los datos de esta propiedad pertenecen a la inmobiliaria correspondiente. Roomix utiliza múltiples fuentes de portales inmobiliarios como ZonaProp, Argenprop, Mercado Libre y otros para indexar y mostrar propiedades disponibles en Argentina. Esta información se presenta únicamente con fines informativos y de búsqueda.

Propiedades cercanas

Propiedades similares