Chacarita 2 Amb con Balcón Vista Abierta - Newbery 3710 - Palta Desarrollos y Cottet - Iachetti

Apartamento · 2 ambientes · 1 dormitorios · 1 baños · 53 m²

J. Newbery al 3700 UF 5 D, Chacarita, Capital Federal
USD 181.190
0
En venta

Características principales de la propiedad

Tipo

Apartamento

Dormitorios

1

Baños

1

Ambientes

2

Área Total

53

Área Cubierta

41

Publicado

27 de enero de 2025

Descripción

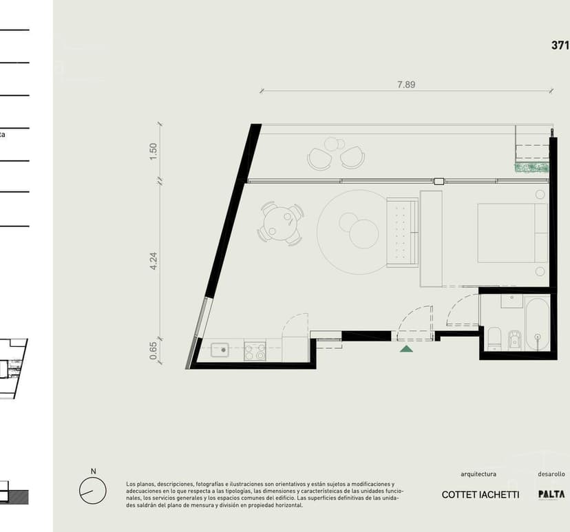
AV Jorge Newbery 3710. Venta. Departamento en Chacarita.Palta Desarrollos | Estudio Cottet-Iachetti | Sposito & Asociados |(UF 5D)2 ambientes40,5 m2 cubiertos + 13.3 m2 balcónCochera optativa (no incluida en el valor publicado)Piso 5 al contrafrente, orientación este (Hall en PB doble altura...

Características

Cerca de transporte publicoCocheraCon expensasApto creditoA estrenarBalconPHEspacio coworkingSUMJacuzziCerca de zona gastronomicaPapeles al dia

Ubicación

Planos

Plano 1

Análisis de mercado

Historial de Precios

Evolución del precio desde la publicación original

USD 181.190
Precio actual
Esta propiedad bajó un 8.7% su precio desde que se publicó
27 ene - 25 sept
USD -17.278(-8.7%)
Precio Original
USD 198.468
Precio Actual
USD 181.190
Cambios de Precio
2

Información del agente

I

Inmobiliaria

¿Sos de esta inmobiliaria?

Reclamá tu perfil gratis y conseguí más leads calificados con IA. Sin comisiones, sin límites.

Conocer más

Información sobre los datos

Los derechos de los datos de esta propiedad pertenecen a la inmobiliaria correspondiente. Roomix utiliza múltiples fuentes de portales inmobiliarios como ZonaProp, Argenprop, Mercado Libre y otros para indexar y mostrar propiedades disponibles en Argentina. Esta información se presenta únicamente con fines informativos y de búsqueda.

Propiedades cercanas

Propiedades similares