En Venta Departamento de 2 Ambientes. Edificio Bonjo 12. Zona Chauvin.

Apartamento · 2 ambientes · 1 dormitorios · 1 baños · 60 m²

roca 3154, Chauvín, Mar del Plata
USD 139.725
0
En venta

Características principales de la propiedad

Tipo

Apartamento

Dormitorios

1

Baños

1

Ambientes

2

Área Total

60

Área Cubierta

51

Publicado

16 de diciembre de 2024

Descripción

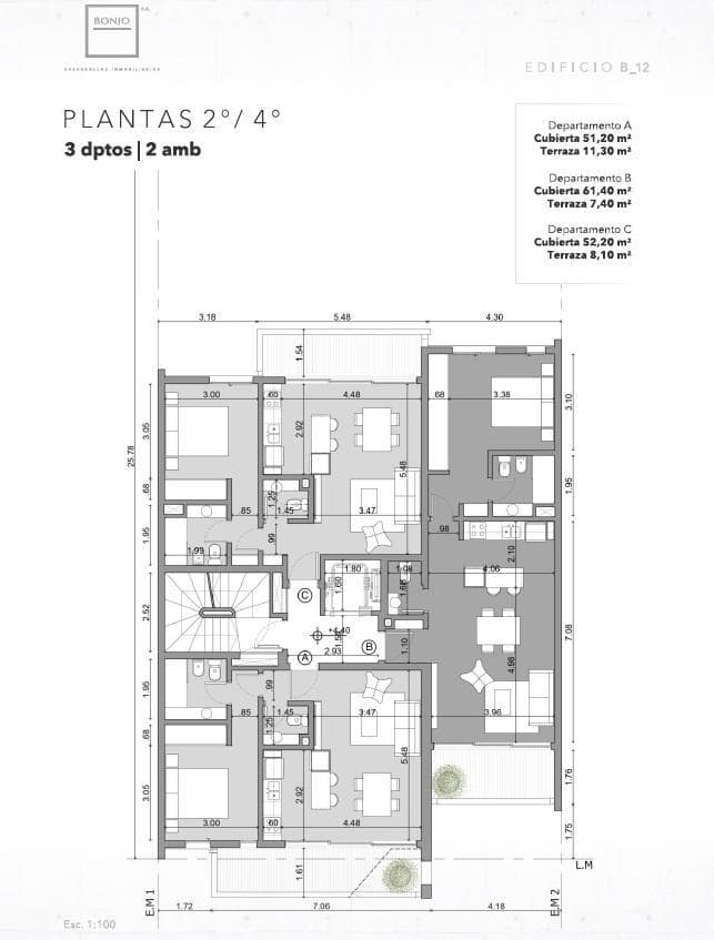
Edificio Bonjo 12, departamentos con encanto. Ubicado en Roca 3154 En venta departamento de 2 ambientes . Superficie cubierta 51.14 m², balcón de 9.61 m². Cuenta con living comedor, cocina integrada con barra, balcón, toilette de recepción, dormitorio en suite con placard. Cocheras opcionales Fecha...

Características

BalconCocheraApto creditoEn barrio privado

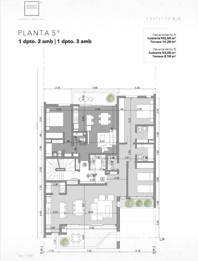
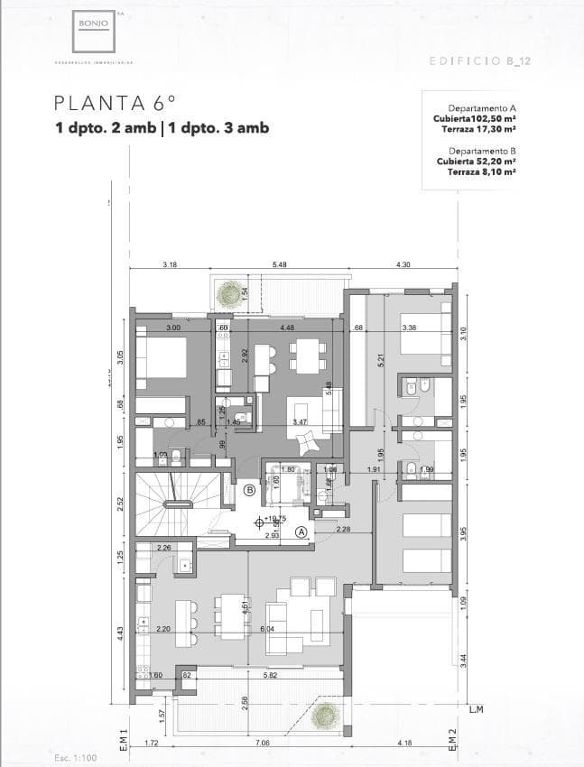
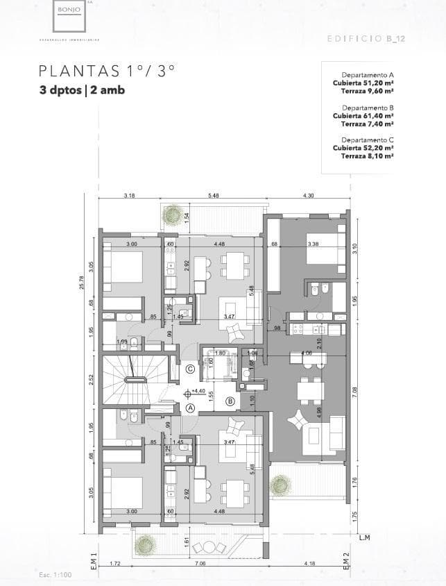
Planos

Plano 1
Plano 2
Plano 3
Plano 4
Plano 5
Plano 6
Plano 7
Plano 8

Análisis de mercado

Información del agente

I

Inmobiliaria

¿Sos de esta inmobiliaria?

Reclamá tu perfil gratis y conseguí más leads calificados con IA. Sin comisiones, sin límites.

Soy el dueño de esta inmobiliaria y quiero reclamar mi perfil

Información sobre los datos

Los derechos de los datos de esta propiedad pertenecen a la inmobiliaria correspondiente. Roomix utiliza múltiples fuentes de portales inmobiliarios como ZonaProp, Argenprop, Mercado Libre y otros para indexar y mostrar propiedades disponibles en Argentina. Esta información se presenta únicamente con fines informativos y de búsqueda.

Propiedades cercanas

Propiedades similares