2 Amb. Muy Luminoso, a Estrenar - Sum, Pisicina, Parrillas. (Con Renta)

Apartamento · 2 ambientes · 1 dormitorios · 1 baños · 52 m²

Av. Nazca al 900 - 8C, Flores, Capital Federal
USD 109.900
+ $ 100.000 expensas
En venta

Características principales de la propiedad

Tipo

Apartamento

Dormitorios

1

Baños

1

Ambientes

2

Área Total

52

Área Cubierta

43

Publicado

15 de abril de 2024

Descripción

- Caja de escalera de Servicio protegidas Contra Incendio por muros F60 con antecámara y puertas contra-fuego con palieres ventilados.- Portero visor 1º calidad. (Opcional)- Hall de acceso realizado con mármoles y/o porcelanato, mostrador y revestimientos en Wengue muros, revestidos en espejo, yeso...

Características

CocheraPiletaParrillaBalconSUMSolariumCon expensas

Ubicación

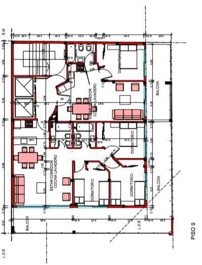
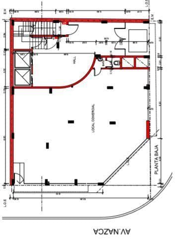
Planos

Plano 1
Plano 2
Plano 3
Plano 4
Plano 5

Análisis de mercado

Historial de Precios

Evolución del precio desde la publicación original

USD 109.900
Precio actual
Esta propiedad bajó un 3.6% su precio desde que se publicó
15 abr - 25 sept
USD -4.100(-3.6%)
Precio Original
USD 114.000
Precio Actual
USD 109.900
Cambios de Precio
2

Información del agente

I

Inmobiliaria

¿Sos de esta inmobiliaria?

Reclamá tu perfil gratis y conseguí más leads calificados con IA. Sin comisiones, sin límites.

Conocer más

Información sobre los datos

Los derechos de los datos de esta propiedad pertenecen a la inmobiliaria correspondiente. Roomix utiliza múltiples fuentes de portales inmobiliarios como ZonaProp, Argenprop, Mercado Libre y otros para indexar y mostrar propiedades disponibles en Argentina. Esta información se presenta únicamente con fines informativos y de búsqueda.

Propiedades cercanas

Propiedades similares