Departamento en Venta en Florida, Vicente López, G. B. a. Zona Norte

Apartamento · 2 ambientes · 1 dormitorios · 2 baños · 61 m²

Maipú 1200, Florida, Vicente López
USD 184.730
0
En venta

Características principales de la propiedad

Tipo

Apartamento

Dormitorios

1

Baños

2

Ambientes

2

Área Total

61

Área Cubierta

51

Publicado

11 de junio de 2024

Descripción

ONE Residential Tower es un emprendimiento en el que la naturaleza y la ciudad se unen en armoniosa convivencia sobre un lote de 1200 m2. Con la visión arquitectónica de RDR Arquitectos, priorizando la luz natural en todos los espacios y con características de lujo garantizando el máximo confort par...

Características

PiletaTerrazaCocheraCon expensasApto creditoApto profesionalBalconSolariumVista al frenteCerca de transporte publico

Ubicación

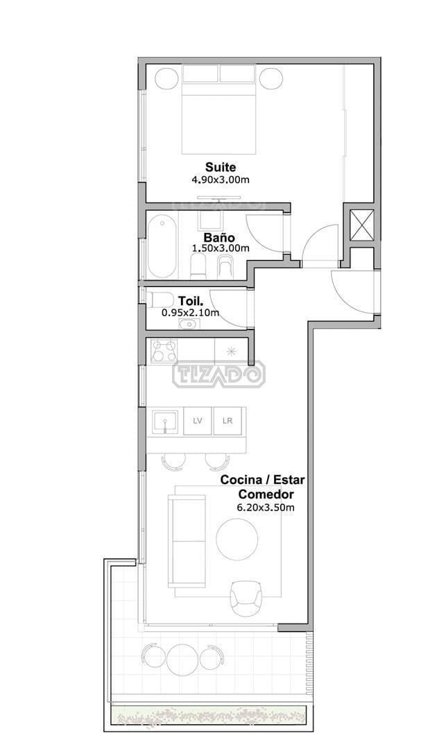
Planos

Plano 1

Análisis de mercado

Información del agente

I

Inmobiliaria

¿Sos de esta inmobiliaria?

Reclamá tu perfil gratis y conseguí más leads calificados con IA. Sin comisiones, sin límites.

Conocer más

Información sobre los datos

Los derechos de los datos de esta propiedad pertenecen a la inmobiliaria correspondiente. Roomix utiliza múltiples fuentes de portales inmobiliarios como ZonaProp, Argenprop, Mercado Libre y otros para indexar y mostrar propiedades disponibles en Argentina. Esta información se presenta únicamente con fines informativos y de búsqueda.

Propiedades cercanas

Propiedades similares