Departamento un dormitorio en quinto piso con balcón al frente a calle 42 - esquina 17

Apartamento · 2 ambientes · 1 dormitorios · 1 baños · 51 m²

Departamento un Dormi al Frente con Balcón Hacia Calle 42 Esquina 17, La Plata, La Plata
USD 78.000
+ $ 55.000 expensas
En venta

Características principales de la propiedad

Tipo

Apartamento

Dormitorios

1

Baños

1

Ambientes

2

Área Total

51

Área Cubierta

45

Antigüedad

0 años

Publicado

16 de septiembre de 2025

Descripción

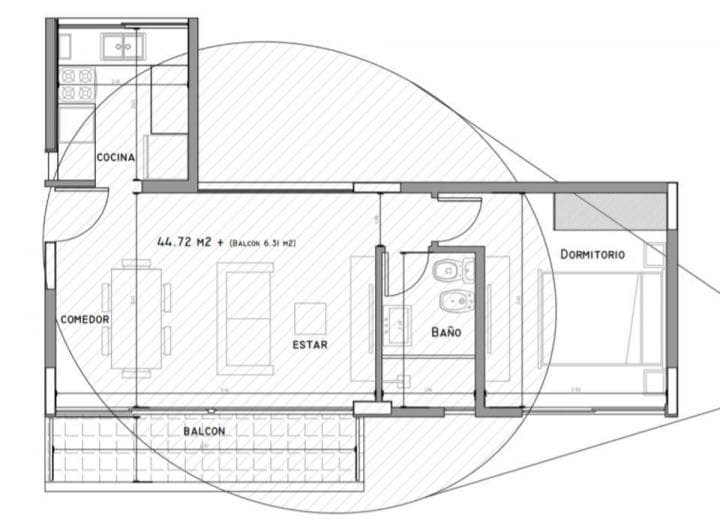
Departamento en venta Quinto piso al frente sobre calle 42 esquina 17 Cuenta con living-comedor, balcón, cocina separada con muebles bajomesada, un baño completo con todos sus artefactos y un dormitorio con placard. Aberturas de aluminio con Doble vidrio hermético. Calefacción por radiadores. Se...

Características

Apto para mascotasApto profesionalVista al frenteMuy luminosoOrientacion noroesteCalefaccionLaundryBalconCocinaComedorLavaderoLivingLiving comedorCocheraCon expensasCerca de transporte publicoApto creditoPH

Ubicación

Planos

Plano 1

Análisis de mercado

Información del agente

O

OCOLOTOBICHE PROPIEDADES

¿Sos de esta inmobiliaria?

Reclamá tu perfil gratis y conseguí más leads calificados con IA. Sin comisiones, sin límites.

Conocer más

Información sobre los datos

Los derechos de los datos de esta propiedad pertenecen a la inmobiliaria correspondiente. Roomix utiliza múltiples fuentes de portales inmobiliarios como ZonaProp, Argenprop, Mercado Libre y otros para indexar y mostrar propiedades disponibles en Argentina. Esta información se presenta únicamente con fines informativos y de búsqueda.

Propiedades cercanas

Propiedades similares