DEPARTAMENTO DIVINO A ESTRENAR EN CAÑITAS – CON TERRAZA Y JARDÍN DE INVIERNO

Apartamento · 2 ambientes · 1 dormitorios · 1 baños · 35 m²

Soldado de la Independencia 943, Las Cañitas, Palermo
USD 800
+ $ 165.000 expensas
En alquiler

Características principales de la propiedad

Tipo

Apartamento

Dormitorios

1

Baños

1

Ambientes

2

Área Total

35

Área Cubierta

26

Antigüedad

0 años

Publicado

30 de octubre de 2025

Descripción

DEPARTAMENTO DIVINO A ESTRENAR EN CAÑITAS – CON TERRAZA Y JARDÍN DE INVIERNO Viví en uno de los barrios más lindos y conectados de Buenos Aires. Este departamento a estrenar combina diseño, luz y calidez en cada detalle. Actualmente en obra (reciclado integral), con entrega prevista para el 15 de d...

Características

Vista al frenteMuy luminosoOrientacion norteBalconCocinaComedorLavaderoLivingLiving comedorEncargado VigilanciaAscensorCon expensasA estrenarReciclado

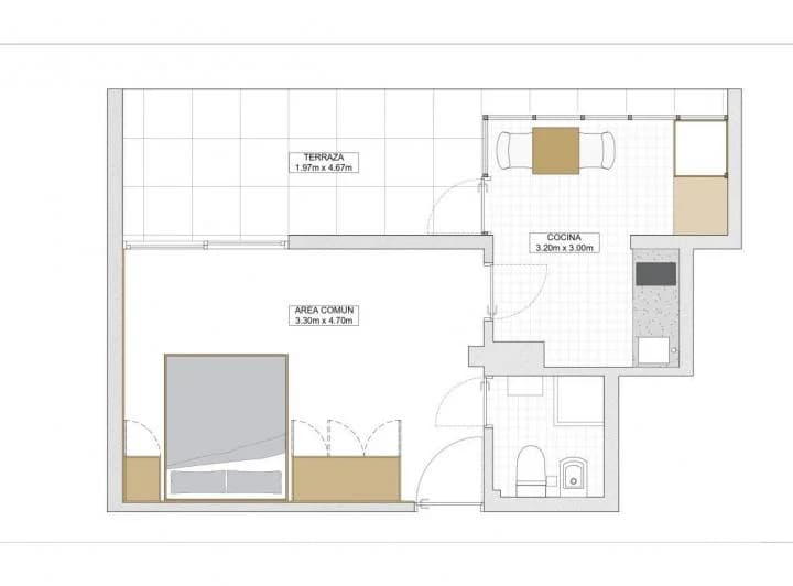
Planos

Plano 1

Información del agente

F

Fernando Bustos

¿Sos de esta inmobiliaria?

Reclamá tu perfil gratis y conseguí más leads calificados con IA. Sin comisiones, sin límites.

Soy el dueño de esta inmobiliaria y quiero reclamar mi perfil

Información sobre los datos

Los derechos de los datos de esta propiedad pertenecen a la inmobiliaria correspondiente. Roomix utiliza múltiples fuentes de portales inmobiliarios como ZonaProp, Argenprop, Mercado Libre y otros para indexar y mostrar propiedades disponibles en Argentina. Esta información se presenta únicamente con fines informativos y de búsqueda.

Propiedades cercanas

Propiedades similares