A Estrenar 1 y 1/2 Amb de 49 m² con Balcón - Patio

Apartamento · 2 ambientes · 1 dormitorios · 1 baños · 49 m²

Lascano 4000 2°, Monte Castro, Capital Federal
USD 92.000
+ $ 70.000 expensas
En venta

Características principales de la propiedad

Tipo

Apartamento

Dormitorios

1

Baños

1

Ambientes

2

Área Total

49

Área Cubierta

49

Publicado

27 de agosto de 2021

Descripción

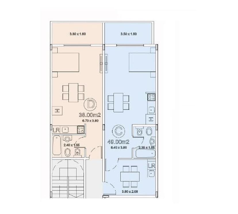
Venta de departamento en Monte Castro.TERMINADO, A ESTRENAR. Listo para escriturar., (opcional cochera U$S 10.000)DEPARTAMENTO 1 AMBIENTE CON POSIBILIDAD DE TRANSFORMAR EN 2 AMBIENTES DE 49m2. MONOAMBIENTE DIVISIBLE DE 49m2. sum + parrilla + terraza + solarium.AMBIENTE DE 8.4 X 3.8 , COCINA INTEGRAD...

Características

A estrenarCocheraBalconTerrazaSolariumIdeal para alquilerSUMParrilla

Ubicación

Planos

Plano 1

Análisis de mercado

Historial de Precios

Evolución del precio desde la publicación original

USD 92.000
Precio actual
Esta propiedad subió un 19.6% su precio desde que se publicó
27 ago - 26 sept
+USD 15.100(+19.6%)
Precio Original
USD 76.900
Precio Actual
USD 92.000
Cambios de Precio
2

Información del agente

I

Inmobiliaria

¿Sos de esta inmobiliaria?

Reclamá tu perfil gratis y conseguí más leads calificados con IA. Sin comisiones, sin límites.

Conocer más

Información sobre los datos

Los derechos de los datos de esta propiedad pertenecen a la inmobiliaria correspondiente. Roomix utiliza múltiples fuentes de portales inmobiliarios como ZonaProp, Argenprop, Mercado Libre y otros para indexar y mostrar propiedades disponibles en Argentina. Esta información se presenta únicamente con fines informativos y de búsqueda.

Propiedades cercanas

Propiedades similares