Departamento en Venta Ubicado en Núñez, Capital Federal, Buenos Aires

Apartamento · 2 ambientes · 1 dormitorios · 1 baños · 50 m²

Núñez, Capital Federal
USD 133.000
0
En venta

Características principales de la propiedad

Tipo

Apartamento

Dormitorios

1

Baños

1

Ambientes

2

Área Total

50

Área Cubierta

50

Publicado

4 de abril de 2024

Descripción

Terrazas de Nuñez El proyecto se encuentra ubicado sobre la calle Deheza a media cuadra de la Av. Cabildo hacia el río y la calle Vuelta de Obligado.El tejido actual prevaleciente en la manzana es de tipologías edilicias varias con alturas entre 2 a 4 niveles. La tipología elegid...

Características

CocheraApto creditoCon expensasA estrenarParrillaCerca de transporte publicoGimnasioSolariumVista al rioEn barrio privadoSUMCo-working

Ubicación

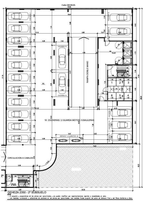
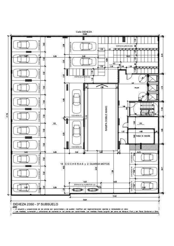
Planos

Plano 1
Plano 2
Plano 3
Plano 4
Plano 5

Análisis de mercado

Información del agente

I

Inmobiliaria

¿Sos de esta inmobiliaria?

Reclamá tu perfil gratis y conseguí más leads calificados con IA. Sin comisiones, sin límites.

Conocer más

Información sobre los datos

Los derechos de los datos de esta propiedad pertenecen a la inmobiliaria correspondiente. Roomix utiliza múltiples fuentes de portales inmobiliarios como ZonaProp, Argenprop, Mercado Libre y otros para indexar y mostrar propiedades disponibles en Argentina. Esta información se presenta únicamente con fines informativos y de búsqueda.

Propiedades cercanas

Propiedades similares