Emprendimiento Araoz y Jufre

Apartamento · 2 ambientes · 1 baños · 36 m²

Araoz Y Jufre al 300, Palermo, Capital Federal
USD 138.000
0
En venta

Características principales de la propiedad

Tipo

Apartamento

Dormitorios

0

Baños

1

Ambientes

2

Área Total

36

Área Cubierta

35

Publicado

1 de abril de 2025

Descripción

JUFRE 300 EDIFICIO EL PRECIO DE ÈSTA PUBLICACIÒN CORRESPONDE A UNA DE LAS UNIDADES DE 2 AMBIENTES CON BALCÒN UBICADAS EN 1er. PISO. HASTA EL PISO 7mo INCLUSIVE SON TODOS DEPTOS DE 2 AMBIENTES CON BALCÒN.¡CONSULTÀ LOS VALORES, DISPOSICIÒN, MTS CUB Y TOTALES DE CADA UNIDAD EN LA ÙLTIMA IMÀGEN DE LA PU...

Características

BalconParrillaSUMSolariumApto credito

Ubicación

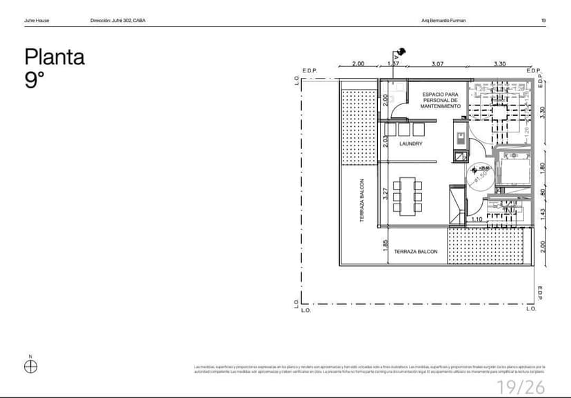
Planos

Plano 1
Plano 2
Plano 3
Plano 4
Plano 5

Análisis de mercado

Historial de Precios

Evolución del precio desde la publicación original

USD 138.000
Precio actual
Esta propiedad subió un 19.0% su precio desde que se publicó
1 abr - 25 sept
+USD 22.000(+19.0%)
Precio Original
USD 116.000
Precio Actual
USD 138.000
Cambios de Precio
2

Información del agente

I

Inmobiliaria

¿Sos de esta inmobiliaria?

Reclamá tu perfil gratis y conseguí más leads calificados con IA. Sin comisiones, sin límites.

Conocer más

Información sobre los datos

Los derechos de los datos de esta propiedad pertenecen a la inmobiliaria correspondiente. Roomix utiliza múltiples fuentes de portales inmobiliarios como ZonaProp, Argenprop, Mercado Libre y otros para indexar y mostrar propiedades disponibles en Argentina. Esta información se presenta únicamente con fines informativos y de búsqueda.

Propiedades cercanas

Propiedades similares