Departamento - Palermo

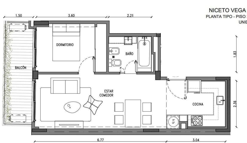
Apartamento · 2 ambientes · 1 dormitorios · 1 baños · 46 m²

Av. Niceto Vega 5600, Palermo, Capital Federal
USD 128.800
0
En venta

Características principales de la propiedad

Tipo

Apartamento

Dormitorios

1

Baños

1

Ambientes

2

Área Total

46

Área Cubierta

42

Publicado

20 de marzo de 2025

Descripción

ENTREGA MAYO 2026Departamento 2 ambientes de 46m² totales ubicado en un tercer piso, distribuidos en hall de recepción, un baño completo, living comedor con cocina integrada, dormitorio y balcón. El edificio contará con solárium, duchas, laundry, bicicletero, terraza y parrillas.El edificio de 10 pi...

Características

BalconCocheraTerrazaParrillaSolarium

Ubicación

Planos

Plano 1
Plano 2

Análisis de mercado

Información del agente

I

Inmobiliaria

¿Sos de esta inmobiliaria?

Reclamá tu perfil gratis y conseguí más leads calificados con IA. Sin comisiones, sin límites.

Conocer más

Información sobre los datos

Los derechos de los datos de esta propiedad pertenecen a la inmobiliaria correspondiente. Roomix utiliza múltiples fuentes de portales inmobiliarios como ZonaProp, Argenprop, Mercado Libre y otros para indexar y mostrar propiedades disponibles en Argentina. Esta información se presenta únicamente con fines informativos y de búsqueda.

Propiedades cercanas

Propiedades similares