Departamento en Venta Ubicado en Palermo, Capital Federal, Buenos Aires

Apartamento · 2 ambientes · 1 dormitorios · 70 m²

Gutierrez 3800, Palermo, Capital Federal
USD 396.000
0
En venta

Características principales de la propiedad

Tipo

Apartamento

Dormitorios

1

Baños

0

Ambientes

2

Área Total

70

Área Cubierta

60

Publicado

20 de agosto de 2024

Descripción

PISO BAJO A ESTRENAR EN GUTIEREZ 3821Descripción del inmueble:Ubicación: Gutiérrez 3821, entre República Árabe Siria y Lafinur, a metros del Palacio Bellini, Boulevard Cerviño y Jardín Botánico.Superficie: 70 m²Tipo de piso: BajoCaracterísticas:Balcón terraza con parrilla propiaCochera fijaDistribuc...

Características

A estrenarBalconCocheraSeguridad 24hsCon expensasGimnasioSauna

Ubicación

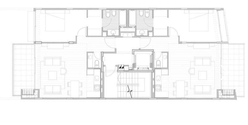
Planos

Plano 1

Análisis de mercado

Información del agente

I

Inmobiliaria

¿Sos de esta inmobiliaria?

Reclamá tu perfil gratis y conseguí más leads calificados con IA. Sin comisiones, sin límites.

Conocer más

Información sobre los datos

Los derechos de los datos de esta propiedad pertenecen a la inmobiliaria correspondiente. Roomix utiliza múltiples fuentes de portales inmobiliarios como ZonaProp, Argenprop, Mercado Libre y otros para indexar y mostrar propiedades disponibles en Argentina. Esta información se presenta únicamente con fines informativos y de búsqueda.

Propiedades cercanas

Propiedades similares