Niceto Vega Palermo Hollywood

Apartamento · 2 ambientes · 1 dormitorios · 2 baños · 78 m²

Niceto Vega 5600 2°, Palermo Hollywood, Palermo
USD 239.900
+ $ 280.000 expensas
En venta

Características principales de la propiedad

Tipo

Apartamento

Dormitorios

1

Baños

2

Ambientes

2

Área Total

78

Área Cubierta

75

Antigüedad

4 años

Publicado

23 de diciembre de 2023

Descripción

SEMIPISO. APTO USO PROFESIONAL. FRENTE Opción Cochera en el edificio con costo adicional y según disponibilidad. Valor u$s 25.000.Niceto Vega Palermo Hollywood Moderno y Funcional con lindos detalles de terminación. Desarrollado en una planta, básicamente inscripto en una superficie rectangular de 8...

Características

Apto profesionalCocheraCalefaccion por radiadorPiletaGimnasioAccesible para personas con movilidad reducida

Ubicación

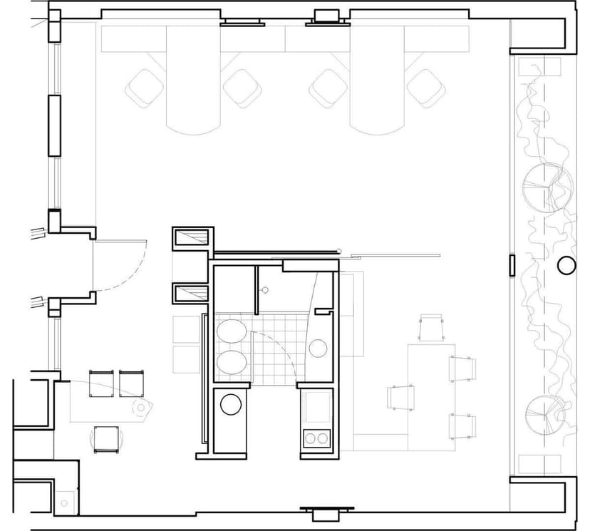
Planos

Plano 1

Análisis de mercado

Historial de Precios

Evolución del precio desde la publicación original

USD 239.900
Precio actual
Esta propiedad bajó un 0.9% su precio desde que se publicó
23 dic - 26 sept
USD -2.100(-0.9%)
Precio Original
USD 242.000
Precio Actual
USD 239.900
Cambios de Precio
2

Información del agente

martin maneglia gutierrez

martin maneglia gutierrez

¿Sos de esta inmobiliaria?

Reclamá tu perfil gratis y conseguí más leads calificados con IA. Sin comisiones, sin límites.

Conocer más

Información sobre los datos

Los derechos de los datos de esta propiedad pertenecen a la inmobiliaria correspondiente. Roomix utiliza múltiples fuentes de portales inmobiliarios como ZonaProp, Argenprop, Mercado Libre y otros para indexar y mostrar propiedades disponibles en Argentina. Esta información se presenta únicamente con fines informativos y de búsqueda.

Propiedades cercanas

Propiedades similares