ALQUILER 2 ambientes con cochera en MACONDA XXI, Amenities

Apartamento · 2 ambientes · 1 dormitorios · 1 baños · 45 m²

Maconda Xxi, Quilmes, Quilmes, GBA Sur
USD 460
+ $ 178.000 expensas
En alquiler

Características principales de la propiedad

Tipo

Apartamento

Dormitorios

1

Baños

1

Ambientes

2

Área Total

45

Área Cubierta

41

Antigüedad

0 años

Publicado

7 de octubre de 2025

Descripción

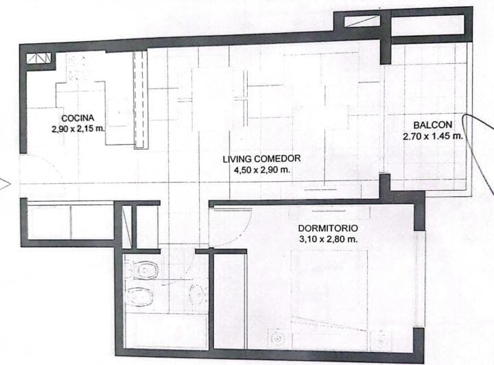
Disponible para iniciar contrato octubre 2025. MACONDA XXI CON AMENITIES. 1 año de antigüedad. 2 AMBIENTES, EN ALQUILER CON COCHERA Y BALCÓN! Cocina, lavadero, living, balcón, dormitorio con placard y baño. 45m2. EDIFICIO: Salón de Usos Múltiples (SUM) Piscina y Solarium, Gimnasio, Área cubierta...

Características

Apto para mascotasGimnasioLaundryPiletaSolariumSUMSeguridad 24hsBalconCocinaLavaderoLiving comedorTerrazaEncargado VigilanciaCocheraCon expensasCerca de transporte publicoCerca del supermercadoAmplio living

Ubicación

Planos

Plano 1

Información del agente

Karen Romero Propiedades

Karen Romero Propiedades

¿Sos de esta inmobiliaria?

Reclamá tu perfil gratis y conseguí más leads calificados con IA. Sin comisiones, sin límites.

Conocer más

Información sobre los datos

Los derechos de los datos de esta propiedad pertenecen a la inmobiliaria correspondiente. Roomix utiliza múltiples fuentes de portales inmobiliarios como ZonaProp, Argenprop, Mercado Libre y otros para indexar y mostrar propiedades disponibles en Argentina. Esta información se presenta únicamente con fines informativos y de búsqueda.

Propiedades cercanas

Propiedades similares