Departamento de 2 ambientes en alquiler

Apartamento · 2 ambientes · 1 dormitorios · 1 baños · 35 m²

Av. San Juan 1950, San Cristobal, Capital Federal
$ 450.000
+ $ 110.000 expensas
En alquiler

Características principales de la propiedad

Tipo

Apartamento

Dormitorios

1

Baños

1

Ambientes

2

Área Total

35

Área Cubierta

35

Antigüedad

50 años

Publicado

2 de septiembre de 2025

Descripción

Cómodo y luminoso 2 ambientes en alquiler en San Cristobal. Excelente distribución. Con cocina independiente con muebles bajo mesada y alacena. Instalación para conectar lavarropa. Amplio baño completo con bañera y espacio de guardado. Amplio dormitorio con un gran placard de piso a techo con...

Características

Disposicion internaLuminosoAire acondicionadoCocinaComedorLavaderoEncargado VigilanciaAscensorCon expensasCerca de transporte publicoCon garantiaNo apto para mascotas

Ubicación

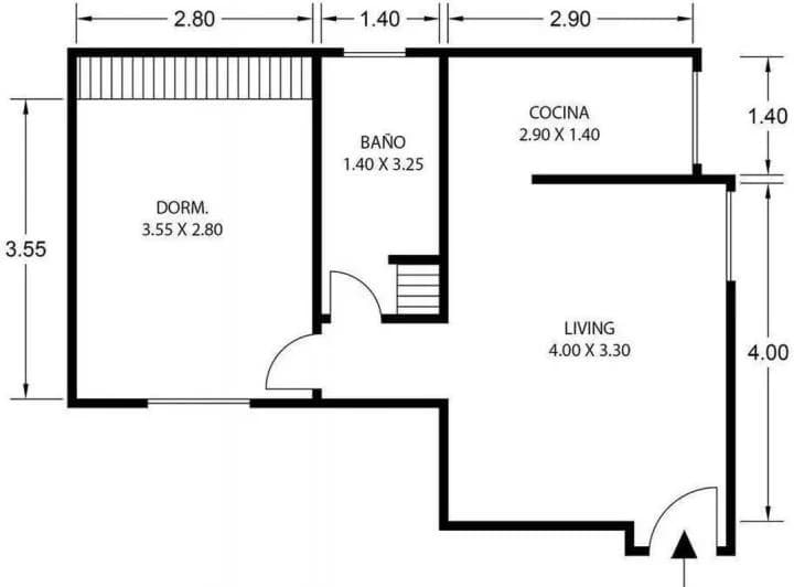
Planos

Plano 1

Información del agente

Luis Castesana

Luis Castesana

¿Sos de esta inmobiliaria?

Reclamá tu perfil gratis y conseguí más leads calificados con IA. Sin comisiones, sin límites.

Conocer más

Información sobre los datos

Los derechos de los datos de esta propiedad pertenecen a la inmobiliaria correspondiente. Roomix utiliza múltiples fuentes de portales inmobiliarios como ZonaProp, Argenprop, Mercado Libre y otros para indexar y mostrar propiedades disponibles en Argentina. Esta información se presenta únicamente con fines informativos y de búsqueda.

Propiedades cercanas

Propiedades similares