Venta Departamento 2 Ambientes Ideal Inversion San Telmo

Apartamento · 2 ambientes · 1 dormitorios · 1 baños · 42 m²

Irigoyen al 1100, San Telmo, Capital Federal
USD 110.200
0
En venta

Características principales de la propiedad

Tipo

Apartamento

Dormitorios

1

Baños

1

Ambientes

2

Área Total

42

Área Cubierta

38

Publicado

25 de junio de 2024

Descripción

INMEJORABLE INVERSIÓN, CERCA DE TODO.Cuenta con unidades de 1 y 2 ambientes, distribuidos en 14 pisos.Está ubicado en el barrio de San Telmo, en Bernardo de Irigoyen 1122, entre Humberto 1 y Av. San Juan.Frente al Metrobus, en la esquina de la Estación de Subte San Juan, y muy cerca de la Estación C...

Características

Cerca de transporte publicoApto profesionalIdeal para alquilerParrillaSolariumSUMNo accesible para personas con movilidad reducida

Ubicación

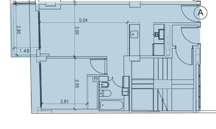
Planos

Plano 1
Plano 2
Plano 3
Plano 4

Análisis de mercado

Historial de Precios

Evolución del precio desde la publicación original

USD 110.200
Precio actual
Esta propiedad subió un 5.1% su precio desde que se publicó
25 jun - 25 sept
+USD 5.300(+5.1%)
Precio Original
USD 104.900
Precio Actual
USD 110.200
Cambios de Precio
2

Información del agente

I

Inmobiliaria

¿Sos de esta inmobiliaria?

Reclamá tu perfil gratis y conseguí más leads calificados con IA. Sin comisiones, sin límites.

Conocer más

Información sobre los datos

Los derechos de los datos de esta propiedad pertenecen a la inmobiliaria correspondiente. Roomix utiliza múltiples fuentes de portales inmobiliarios como ZonaProp, Argenprop, Mercado Libre y otros para indexar y mostrar propiedades disponibles en Argentina. Esta información se presenta únicamente con fines informativos y de búsqueda.

Propiedades cercanas

Propiedades similares