Duplex C/cochera. Vista Abierta Todo Verde!

Apartamento · 2 ambientes · 1 dormitorios · 1 baños · 70 m²

Chacabuco 1026, San Telmo, Capital Federal
USD 148.000
+ $ 35.000 expensas
En venta

Características principales de la propiedad

Tipo

Apartamento

Dormitorios

1

Baños

1

Ambientes

2

Área Total

70

Área Cubierta

55

Antigüedad

10 años

Publicado

16 de febrero de 2024

Descripción

Se ubica en un primer piso al contrafrente, con vista abierta y patio propio. En el primer nivel, living-comedor, balcón, y cocina semi integrada con patio con cerramiento . En un segundo nivel al que se accede por una cómoda escalera, una amplia habitación con baño completo en suite. Pisos de parqu...

Características

CocheraBalcon

Ubicación

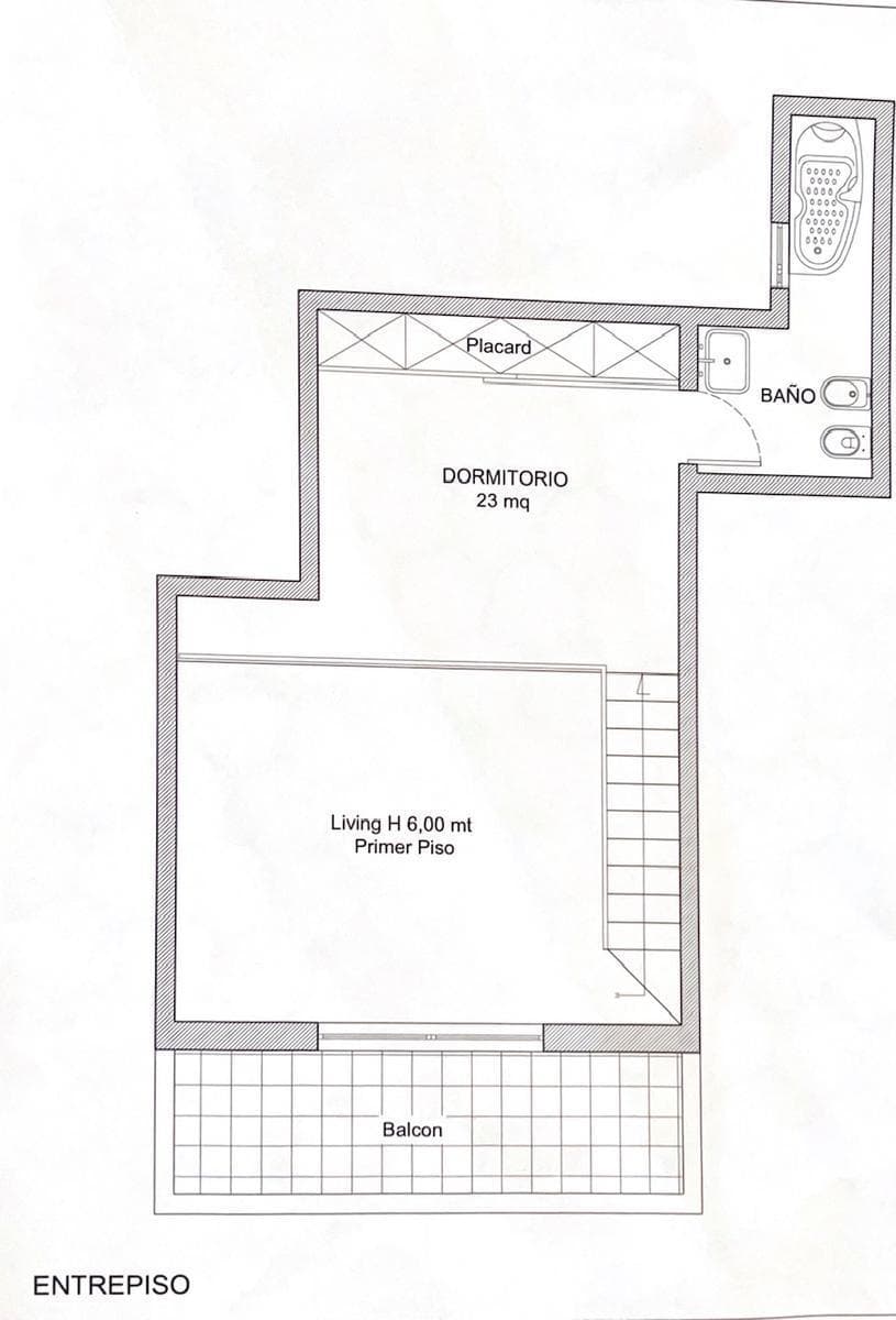
Planos

Plano 1

Análisis de mercado

Información del agente

I

Inmobiliaria

¿Sos de esta inmobiliaria?

Reclamá tu perfil gratis y conseguí más leads calificados con IA. Sin comisiones, sin límites.

Conocer más

Información sobre los datos

Los derechos de los datos de esta propiedad pertenecen a la inmobiliaria correspondiente. Roomix utiliza múltiples fuentes de portales inmobiliarios como ZonaProp, Argenprop, Mercado Libre y otros para indexar y mostrar propiedades disponibles en Argentina. Esta información se presenta únicamente con fines informativos y de búsqueda.

Propiedades cercanas

Propiedades similares