Departamento-A estrenar-Venta-Torre Cardón II-Tigre

Apartamento · 2 ambientes · 1 dormitorios · 1 baños · 52 m²

Departamento-a Estrenar-venta-torres Cardón Ii-tigre, Tigre, GBA Norte
USD 150.000
En venta

Características principales de la propiedad

Tipo

Apartamento

Dormitorios

1

Baños

1

Ambientes

2

Área Total

52

Área Cubierta

46

Antigüedad

0 años

Publicado

11 de julio de 2025

Descripción

Departamento 2 ambientes con una vista increible ya que se encuentra en el piso 18 A ESTRENAR CON ENTREGA EN 4 MESES , PARA HABITAR. con vista al rio y amanecer Cuenta con balcón amplio, baño completo con bañera, losa y griferia roca y fv ventanas de pvc aluminio de doble vidrio. El edificio...

Características

Apto profesionalVista al frenteMuy luminosoGimnasioLaundryParrillaPiletaSUMSeguridad 24hsBalconCocinaLavaderoLivingTerrazaToiletteInternetEncargado VigilanciaAscensorCocheraA estrenarVista al rio

Ubicación

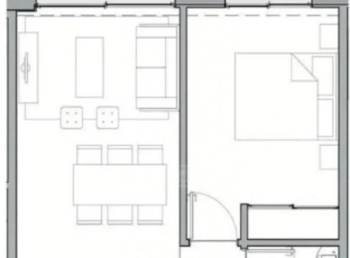
Planos

Plano 1

Análisis de mercado

Información del agente

Top Bienes Raices

Top Bienes Raices

¿Sos de esta inmobiliaria?

Reclamá tu perfil gratis y conseguí más leads calificados con IA. Sin comisiones, sin límites.

Conocer más

Información sobre los datos

Los derechos de los datos de esta propiedad pertenecen a la inmobiliaria correspondiente. Roomix utiliza múltiples fuentes de portales inmobiliarios como ZonaProp, Argenprop, Mercado Libre y otros para indexar y mostrar propiedades disponibles en Argentina. Esta información se presenta únicamente con fines informativos y de búsqueda.

Propiedades cercanas

Propiedades similares