Departamento en Venta en Torre Cardón, Tigre, G. B. a. Zona Norte

Apartamento · 2 ambientes · 1 dormitorios · 59 m²

Torre Cardon II 0, Tigre, Tigre
USD 119.620
0
En venta

Características principales de la propiedad

Tipo

Apartamento

Dormitorios

1

Baños

0

Ambientes

2

Área Total

59

Área Cubierta

49

Publicado

12 de febrero de 2024

Descripción

DEPARTAMENTO 2 AMBIENTES EN TORRE CARDON IIPiso 2 unid G SE ACEPTAN PERMUTAS POR LOTES EN BARRIOS CERRADOS DE ZONA NORTE GBAENTREGA MARZO 2025Ubicación estratégica en el corazón de Tigre, a sólo 5 minutos del acceso.TORRES CARDON Torre II cuenta con un diseño de vanguardia.La Torre II se emplaza en...

Características

Apto para mascotasCerca de transporte publicoGimnasioParrillaQuinchoSaunaSUMBalconApto profesionalPiletaA estrenarIdeal para alquiler

Ubicación

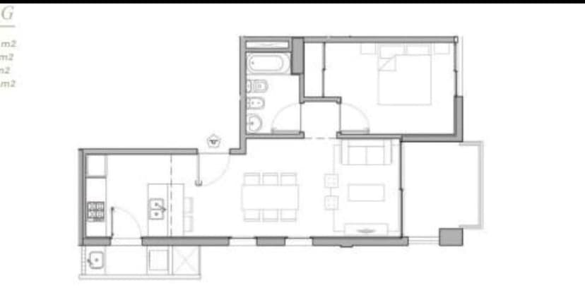
Planos

Plano 1

Análisis de mercado

Historial de Precios

Evolución del precio desde la publicación original

USD 119.620
Precio actual
Esta propiedad bajó un 0.2% su precio desde que se publicó
12 feb - 25 sept
USD -280(-0.2%)
Precio Original
USD 119.900
Precio Actual
USD 119.620
Cambios de Precio
2

Información del agente

I

Inmobiliaria

¿Sos de esta inmobiliaria?

Reclamá tu perfil gratis y conseguí más leads calificados con IA. Sin comisiones, sin límites.

Conocer más

Información sobre los datos

Los derechos de los datos de esta propiedad pertenecen a la inmobiliaria correspondiente. Roomix utiliza múltiples fuentes de portales inmobiliarios como ZonaProp, Argenprop, Mercado Libre y otros para indexar y mostrar propiedades disponibles en Argentina. Esta información se presenta únicamente con fines informativos y de búsqueda.

Propiedades cercanas

Propiedades similares