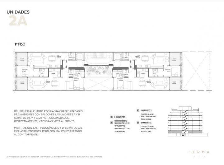
2 ambientes con balcón - En Suite - Toilette - A Estrenar/Construcción Villa Crespo | Lerma al 200

Apartamento · 2 ambientes · 1 dormitorios · 1 baños · 63 m²

Lerma al 200 - 4º D, Villa Crespo, Capital Federal
USD 135.000
En venta

Características principales de la propiedad

Tipo

Apartamento

Dormitorios

1

Baños

1

Ambientes

2

Área Total

63

Área Cubierta

54

Antigüedad

0 años

Publicado

23 de junio de 2025

Descripción

--- Se deja constancia que las medidas, superficies, m2 y proporciones consignadas son aproximados, al igual que las medidas parciales y/o de los ambientes esta sujeto a verificación y/o ajuste. El valor indicado de expensas esta sujeto a variación. El precio del inmueble puede ser modificado sin pr...

Características

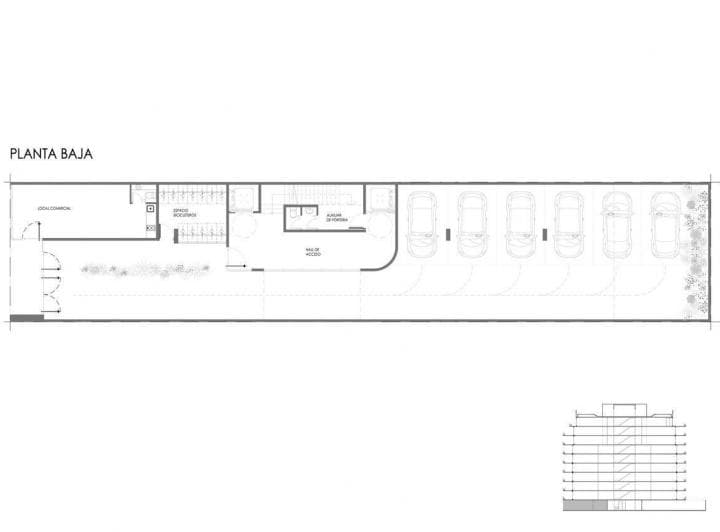
Vista al contrafrenteMuy luminosoOrientacion suroesteParrillaPiletaSolariumBalconDormitorio en suiteLiving comedorToiletteCocheraCon expensas

Ubicación

Planos

Plano 1
Plano 2
Plano 3
Plano 4

Análisis de mercado

Historial de Precios

Evolución del precio desde la publicación original

USD 135.000
Precio actual
Esta propiedad bajó un 10.0% su precio desde que se publicó
23 jun - 10 oct
USD -15.000(-10.0%)
Precio Original
USD 150.000
Precio Actual
USD 135.000
Cambios de Precio
3

Información del agente

Click Aparts

Click Aparts

¿Sos de esta inmobiliaria?

Reclamá tu perfil gratis y conseguí más leads calificados con IA. Sin comisiones, sin límites.

Conocer más

Información sobre los datos

Los derechos de los datos de esta propiedad pertenecen a la inmobiliaria correspondiente. Roomix utiliza múltiples fuentes de portales inmobiliarios como ZonaProp, Argenprop, Mercado Libre y otros para indexar y mostrar propiedades disponibles en Argentina. Esta información se presenta únicamente con fines informativos y de búsqueda.

Propiedades cercanas

Propiedades similares