Proximo a Estrenar 2 Ambientes Villa Crespo

Apartamento · 2 ambientes · 1 dormitorios · 1 baños · 40 m²

Jufre , Villa Crespo, Capital Federal
USD 145.000
+ $ 40.000 expensas
En venta

Características principales de la propiedad

Tipo

Apartamento

Dormitorios

1

Baños

1

Ambientes

2

Área Total

40

Área Cubierta

37

Publicado

26 de septiembre de 2024

Descripción

Excelente unidades de dos ambientes. Ultimas!!! Edificio En esquina, totalmente ambientes Externo!! Muy luminoso. Dos ambientes, Living comedor, cocina estilo americana Completa a gas, balcón corrido . Baño completo con excelentes terminaciones de porcelanato y griferías de Ferrum línea Bari . Dormi...

Características

BalconCalefaccion por radiadorQuincho

Ubicación

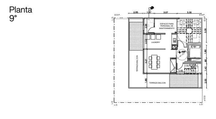
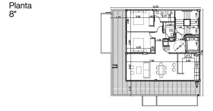
Planos

Plano 1
Plano 2

Análisis de mercado

Historial de Precios

Evolución del precio desde la publicación original

USD 145.000
Precio actual
Esta propiedad subió un 29.5% su precio desde que se publicó
26 sept - 25 sept
+USD 33.000(+29.5%)
Precio Original
USD 112.000
Precio Actual
USD 145.000
Cambios de Precio
2

Información del agente

I

Inmobiliaria

¿Sos de esta inmobiliaria?

Reclamá tu perfil gratis y conseguí más leads calificados con IA. Sin comisiones, sin límites.

Conocer más

Información sobre los datos

Los derechos de los datos de esta propiedad pertenecen a la inmobiliaria correspondiente. Roomix utiliza múltiples fuentes de portales inmobiliarios como ZonaProp, Argenprop, Mercado Libre y otros para indexar y mostrar propiedades disponibles en Argentina. Esta información se presenta únicamente con fines informativos y de búsqueda.

Propiedades cercanas

Propiedades similares