2 Amb. Ampliable a 3 Amb. Entrega Ya! Junio 2025

Apartamento · 2 ambientes · 1 dormitorios · 1 baños · 59 m²

Altolaguirre 2400, Villa Urquiza, Capital Federal
USD 125.000
+ $ 80.000 expensas
En venta

Características principales de la propiedad

Tipo

Apartamento

Dormitorios

1

Baños

1

Ambientes

2

Área Total

59

Área Cubierta

56

Publicado

13 de marzo de 2025

Descripción

Edificio de categoría. Entrega YA !! en junio 2025. Amplio 2 Ambientes con posibilidades de amplia a 3 Amb!!! Cerca de Subte. A pasos tren lineal Mitre . Estación V Urquiza.Se accede por pallier privado. Luego living estar con pisos de cerámica color gris y carpintería aluminio color negro. Ademas c...

Características

No apto creditoAmplio livingBalconCerca de transporte publicoCochera

Ubicación

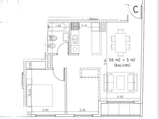
Planos

Plano 1

Análisis de mercado

Historial de Precios

Evolución del precio desde la publicación original

USD 125.000
Precio actual
Esta propiedad subió un 5.0% su precio desde que se publicó
13 mar - 27 sept
+USD 6.000(+5.0%)
Precio Original
USD 119.000
Precio Actual
USD 125.000
Cambios de Precio
3

Información del agente

NuovaCasa Propiedades

NuovaCasa Propiedades

¿Sos de esta inmobiliaria?

Reclamá tu perfil gratis y conseguí más leads calificados con IA. Sin comisiones, sin límites.

Conocer más

Información sobre los datos

Los derechos de los datos de esta propiedad pertenecen a la inmobiliaria correspondiente. Roomix utiliza múltiples fuentes de portales inmobiliarios como ZonaProp, Argenprop, Mercado Libre y otros para indexar y mostrar propiedades disponibles en Argentina. Esta información se presenta únicamente con fines informativos y de búsqueda.

Propiedades cercanas

Propiedades similares