Departamento 3 Ambientes en Venta con Balcon - Construcccion

Apartamento · 3 ambientes · 2 dormitorios · 1 baños · 68 m²

Rio de Janeiro al 500, Almagro, Capital Federal
USD 198.000
0
En venta

Características principales de la propiedad

Tipo

Apartamento

Dormitorios

2

Baños

1

Ambientes

3

Área Total

68

Área Cubierta

63

Publicado

12 de diciembre de 2023

Descripción

Excelente departamento en Edificio Rio 4, Caballito.El departamento cuenta con una hermosa cocina con barra integrada al living con salida al balcón, un dormitorio y baño completo.Entrega Junio 2025. Se encuentra ubicado cerca del Parque Centenario y los hospitales Italiano y Naval lo que...

Características

Cerca al parqueCerca del hospitalCocheraCon expensasIdeal para alquilerPiletaParrillaSUM

Ubicación

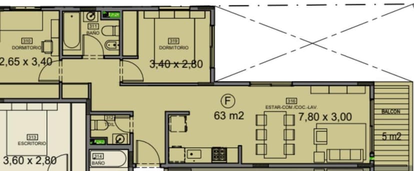
Planos

Plano 1

Análisis de mercado

Historial de Precios

Evolución del precio desde la publicación original

USD 198.000
Precio actual
Esta propiedad subió un 10.0% su precio desde que se publicó
12 dic - 26 sept
+USD 18.000(+10.0%)
Precio Original
USD 180.000
Precio Actual
USD 198.000
Cambios de Precio
2

Información del agente

I

Inmobiliaria

¿Sos de esta inmobiliaria?

Reclamá tu perfil gratis y conseguí más leads calificados con IA. Sin comisiones, sin límites.

Conocer más

Información sobre los datos

Los derechos de los datos de esta propiedad pertenecen a la inmobiliaria correspondiente. Roomix utiliza múltiples fuentes de portales inmobiliarios como ZonaProp, Argenprop, Mercado Libre y otros para indexar y mostrar propiedades disponibles en Argentina. Esta información se presenta únicamente con fines informativos y de búsqueda.

Propiedades cercanas

Propiedades similares