Oficina de 3 Ambientes en Venta Ubicado en Balvanera

Apartamento · 3 ambientes · 2 dormitorios · 2 baños · 93 m²

Av Corrientes al 3400, Balvanera, Capital Federal
USD 280.000
0
En venta

Características principales de la propiedad

Tipo

Apartamento

Dormitorios

2

Baños

2

Ambientes

3

Área Total

93

Área Cubierta

76

Publicado

12 de febrero de 2025

Descripción

3 AMBIENTESCuenta con 2 habitaciones, 2 baños, 1 toilette, living comedor y balcón.Artefactos sanitarios de primera calidad, línea Ferrum, Piazza o Roca; Anafes de cuatro hornallas y horno en acero inoxidable,extractor de cocina electrica, Griferías monocomando de crimera calidad FV, Piazza o simila...

Características

Apto para mascotasCerca de transporte publicoPiletaTerrazaCocheraGimnasioVestidorApto para estudiantesAccesible para personas con movilidad reducida

Ubicación

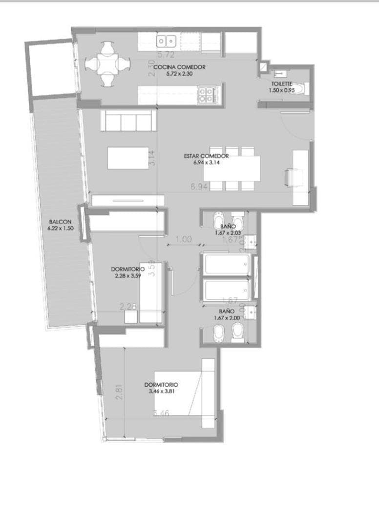
Planos

Plano 1

Análisis de mercado

Historial de Precios

Evolución del precio desde la publicación original

USD 280.000
Precio actual
Esta propiedad subió un 12.0% su precio desde que se publicó
12 feb - 25 sept
+USD 30.000(+12.0%)
Precio Original
USD 250.000
Precio Actual
USD 280.000
Cambios de Precio
2

Información del agente

SITUAR

SITUAR

¿Sos de esta inmobiliaria?

Reclamá tu perfil gratis y conseguí más leads calificados con IA. Sin comisiones, sin límites.

Conocer más

Información sobre los datos

Los derechos de los datos de esta propiedad pertenecen a la inmobiliaria correspondiente. Roomix utiliza múltiples fuentes de portales inmobiliarios como ZonaProp, Argenprop, Mercado Libre y otros para indexar y mostrar propiedades disponibles en Argentina. Esta información se presenta únicamente con fines informativos y de búsqueda.

Propiedades cercanas

Propiedades similares