Departamento de 3 ambientes en venta en Belgrano

Apartamento · 3 ambientes · 2 dormitorios · 1 baños · 83 m²

Lumen Bosques | Migueletes 1657 | 3° 02, Belgrano, Capital Federal
USD 366.520
En venta

Características principales de la propiedad

Tipo

Apartamento

Dormitorios

2

Baños

1

Ambientes

3

Área Total

83

Área Cubierta

74

Antigüedad

0 años

Publicado

16 de septiembre de 2025

Descripción

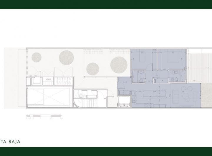
Departamento de 3 ambientes con balcón- Ubicado en el 3° piso al frente. - Escritorio - Toilette de recepción - Living comedor con salida al balcón - Cocina incorporada con barra desayunador - Dormitorio principal en suite con vestidor, baño completo y salida al balcón - Segundo dormitorio con plac...

Características

Vista al frenteBalconDormitorio en suiteLiving comedorToiletteVestidorAscensorCocheraApto creditoEn barrio privadoA estrenar

Ubicación

Planos

Plano 1
Plano 2
Plano 3
Plano 4
Plano 5
Plano 6
Plano 7

Análisis de mercado

Información del agente

BAIGUN REALTY

BAIGUN REALTY

¿Sos de esta inmobiliaria?

Reclamá tu perfil gratis y conseguí más leads calificados con IA. Sin comisiones, sin límites.

Conocer más

Información sobre los datos

Los derechos de los datos de esta propiedad pertenecen a la inmobiliaria correspondiente. Roomix utiliza múltiples fuentes de portales inmobiliarios como ZonaProp, Argenprop, Mercado Libre y otros para indexar y mostrar propiedades disponibles en Argentina. Esta información se presenta únicamente con fines informativos y de búsqueda.

Propiedades cercanas

Propiedades similares