Venta - Dúplex - 3 Ambientes - Terraza Propia - Suite - Belgrano - Entrega Junio 2025

Apartamento · 3 ambientes · 2 dormitorios · 2 baños · 195 m²

Olazábal al 2600 - Piso 9, Belgrano, Capital Federal
USD 505.000
0
En venta

Características principales de la propiedad

Tipo

Apartamento

Dormitorios

2

Baños

2

Ambientes

3

Área Total

195

Área Cubierta

91

Publicado

24 de abril de 2023

Descripción

DÚPLEX DE 3 AMBIENTES - TERRAZA PROPIA - SUITE - COCINA SEPARADA - BELGRANOPLANTA BAJAHall de recepción - Living comedor de dimensiones muy cómodas (7.55m x 3.20m) - Cocina separada (2.65m x 2.40m) - Baño completo - Máster Suite (3.60m x 2.80m) con vestidor (2.00m x 1.70m) - Segundo dormitorio (3.35...

Características

DuplexTerrazaGimnasioPiletaSolariumSUMParrilla

Ubicación

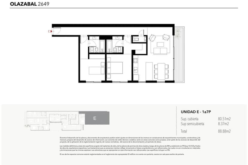
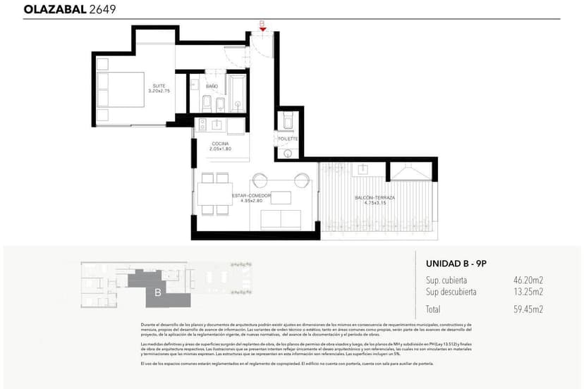
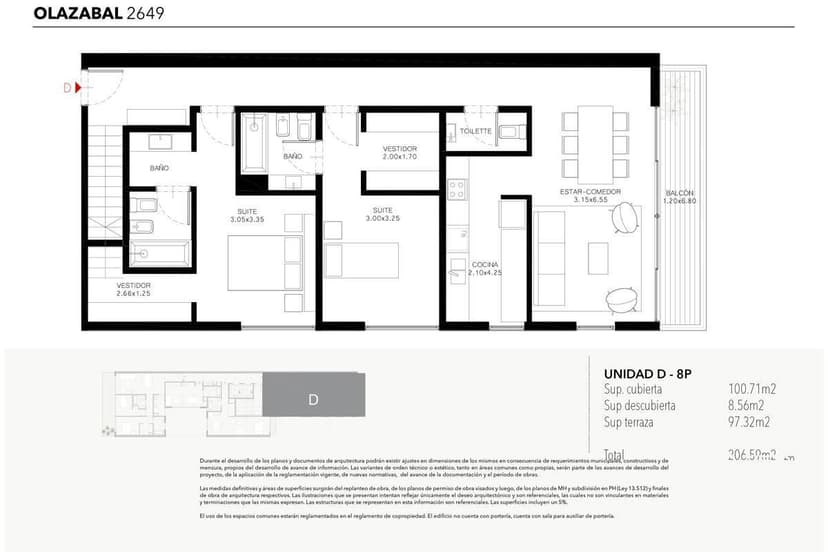
Planos

Plano 1
Plano 2
Plano 3
Plano 4
Plano 5
Plano 6
Plano 7

Análisis de mercado

Información del agente

I

Inmobiliaria

¿Sos de esta inmobiliaria?

Reclamá tu perfil gratis y conseguí más leads calificados con IA. Sin comisiones, sin límites.

Conocer más

Información sobre los datos

Los derechos de los datos de esta propiedad pertenecen a la inmobiliaria correspondiente. Roomix utiliza múltiples fuentes de portales inmobiliarios como ZonaProp, Argenprop, Mercado Libre y otros para indexar y mostrar propiedades disponibles en Argentina. Esta información se presenta únicamente con fines informativos y de búsqueda.

Propiedades cercanas

Propiedades similares