Departamento de 3 ambientes con jardín en venta en Belgrano

Apartamento · 3 ambientes · 2 dormitorios · 1 baños · 129 m²

Lumen Bosques | Migueletes 1657 | PB 01, Belgrano, Capital Federal
USD 477.858
En venta

Características principales de la propiedad

Tipo

Apartamento

Dormitorios

2

Baños

1

Ambientes

3

Área Total

129

Área Cubierta

84

Antigüedad

0 años

Publicado

16 de septiembre de 2025

Descripción

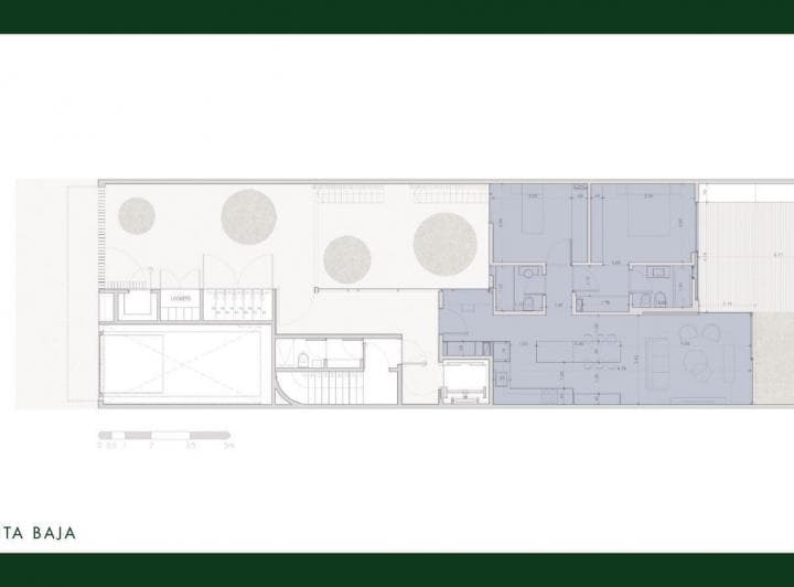
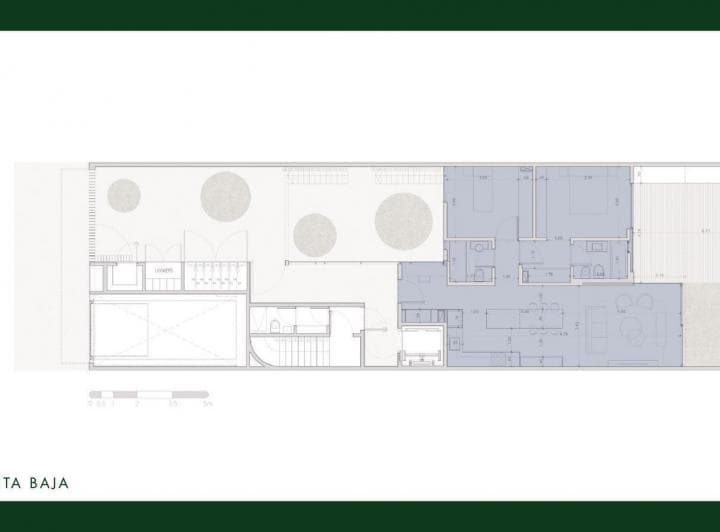
Departamento de 3 ambientes con jardín- Ubicado en Planta Baja al contrafrente. - Escritorio - Toilette de recepción - Living comedor con cocina incorporada - Dormitorio principal en suite con vestidor y baño completo - Segundo dormitorio con placard - Jardín al contrafrente con espacio semicubiert...

Características

Vista al contrafrenteDormitorio en suiteJardinLiving comedorToiletteVestidorAscensorCocheraApto creditoEn barrio privadoCerca de transporte publicoA estrenar

Ubicación

Planos

Plano 1
Plano 2
Plano 3
Plano 4
Plano 5
Plano 6
Plano 7

Análisis de mercado

Información del agente

BAIGUN REALTY

BAIGUN REALTY

¿Sos de esta inmobiliaria?

Reclamá tu perfil gratis y conseguí más leads calificados con IA. Sin comisiones, sin límites.

Conocer más

Información sobre los datos

Los derechos de los datos de esta propiedad pertenecen a la inmobiliaria correspondiente. Roomix utiliza múltiples fuentes de portales inmobiliarios como ZonaProp, Argenprop, Mercado Libre y otros para indexar y mostrar propiedades disponibles en Argentina. Esta información se presenta únicamente con fines informativos y de búsqueda.

Propiedades cercanas

Propiedades similares