Venta - 3 Ambientes - Balcón - Belgrano - Entrega Junio 2025

Apartamento · 3 ambientes · 2 dormitorios · 1 baños · 77 m²

Olazábal al 2600 - Piso 3, Belgrano, Capital Federal
USD 268.100
0
En venta

Características principales de la propiedad

Tipo

Apartamento

Dormitorios

2

Baños

1

Ambientes

3

Área Total

77

Área Cubierta

71

Publicado

14 de marzo de 2025

Descripción

3 AMBIENTES - BALCÓN - TOILETTE - COCINA SEPARADA - BELGRANOLiving comedor de dimensiones muy cómodas (7.85m x 3.25m) - Balcón (1.15m x 3.50m) - Cocina separada (2.30m x 2.20m) - Toilette de recepción - Dormitorio principal (3.35m x 2.80m) - Segundo dormitorio (2.95m x 2.80m)SUPERFICIESSup. Cub. 71....

Características

BalconPiletaSolariumGimnasioCon expensas

Ubicación

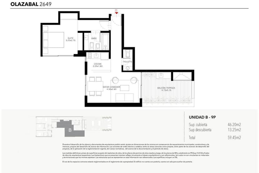
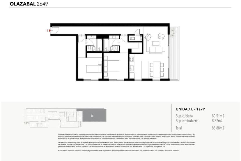
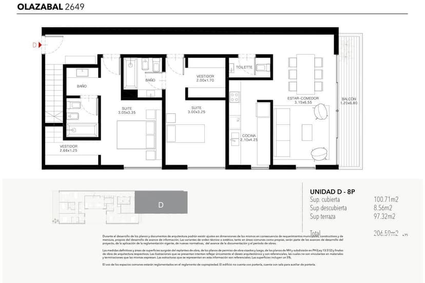
Planos

Plano 1
Plano 2
Plano 3
Plano 4
Plano 5
Plano 6
Plano 7

Análisis de mercado

Información del agente

I

Inmobiliaria

¿Sos de esta inmobiliaria?

Reclamá tu perfil gratis y conseguí más leads calificados con IA. Sin comisiones, sin límites.

Conocer más

Información sobre los datos

Los derechos de los datos de esta propiedad pertenecen a la inmobiliaria correspondiente. Roomix utiliza múltiples fuentes de portales inmobiliarios como ZonaProp, Argenprop, Mercado Libre y otros para indexar y mostrar propiedades disponibles en Argentina. Esta información se presenta únicamente con fines informativos y de búsqueda.

Propiedades cercanas

Propiedades similares