Departamento - Venta - Caballito

Apartamento · 3 ambientes · 2 dormitorios · 1 baños · 72 m²

Rio de Janeiro al 400, Caballito, Capital Federal
USD 206.000
0
En venta

Características principales de la propiedad

Tipo

Apartamento

Dormitorios

2

Baños

1

Ambientes

3

Área Total

72

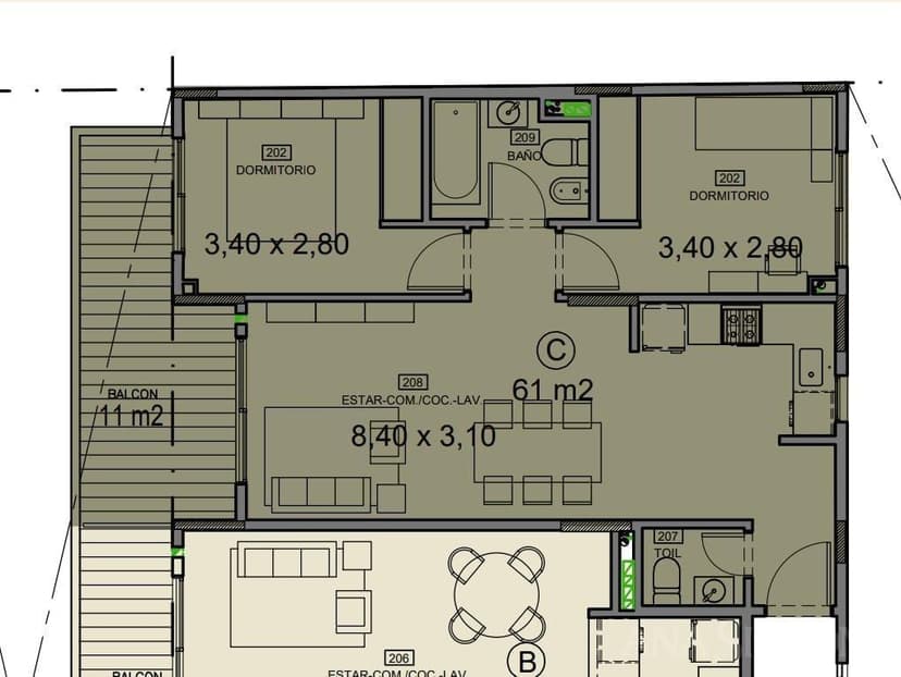
Área Cubierta

61

Publicado

29 de abril de 2024

Descripción

CABA, Caballito - CÓDIGO 0029 1AMBExcelente departamento de 3 ambientes, a pulmón de manzana, ideal inversión, a estrenar en 7mo. piso El. Departamento de 61 m2 cubiertos y 11m2 de balcón, total 72m2 en la mejor zona de Caballito. El edificio cuenta con amenities de primer nivel: Deck solarium, SU...

Características

A estrenarBalconPiletaParrillaSUMSolariumCochera

Ubicación

Planos

Plano 1

Análisis de mercado

Información del agente

ANA SIMEONE Realty

ANA SIMEONE Realty

¿Sos de esta inmobiliaria?

Reclamá tu perfil gratis y conseguí más leads calificados con IA. Sin comisiones, sin límites.

Conocer más

Información sobre los datos

Los derechos de los datos de esta propiedad pertenecen a la inmobiliaria correspondiente. Roomix utiliza múltiples fuentes de portales inmobiliarios como ZonaProp, Argenprop, Mercado Libre y otros para indexar y mostrar propiedades disponibles en Argentina. Esta información se presenta únicamente con fines informativos y de búsqueda.

Propiedades cercanas

Propiedades similares