Departamento en Pozo

Apartamento · 3 ambientes · 2 dormitorios · 1 baños · 60 m²

Falucho al 3100, Plaza Mitre, Centro
USD 120.000
0
En venta

Características principales de la propiedad

Tipo

Apartamento

Dormitorios

2

Baños

1

Ambientes

3

Área Total

60

Área Cubierta

60

Publicado

14 de abril de 2025

Descripción

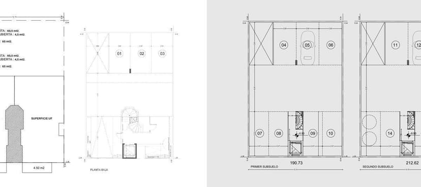
65 m² 3 ambientes2 habitaciones1 baño completo 1 toilette Cocina, comedor y sala de estar integrados Amplio balcón CocheraUn espacio diseñado para vivir con estilo, comodidad y modernidad ????Ubicado en un núcleo de la ciudad a metros de Plaza MitreABERTURAS DVH MUEBLES TIPO JHONSONGRIFERIA TIPO FV...

Características

BalconCocheraA estrenar

Ubicación

Planos

Plano 1
Plano 2

Análisis de mercado

Información del agente

I

Inmobiliaria

¿Sos de esta inmobiliaria?

Reclamá tu perfil gratis y conseguí más leads calificados con IA. Sin comisiones, sin límites.

Conocer más

Información sobre los datos

Los derechos de los datos de esta propiedad pertenecen a la inmobiliaria correspondiente. Roomix utiliza múltiples fuentes de portales inmobiliarios como ZonaProp, Argenprop, Mercado Libre y otros para indexar y mostrar propiedades disponibles en Argentina. Esta información se presenta únicamente con fines informativos y de búsqueda.

Propiedades cercanas

Propiedades similares