VENTA - 3 AMBIENTES CON BALCÓN - A ESTRENAR - PILETA - SUM - FLORES

Apartamento · 3 ambientes · 2 dormitorios · 1 baños · 69 m²

Av. Nazca Esquina Neuquen, Flores, Capital Federal
USD 136.000
+ $ 5.000 expensas
En venta

Características principales de la propiedad

Tipo

Apartamento

Dormitorios

2

Baños

1

Ambientes

3

Área Total

69

Área Cubierta

59

Antigüedad

0 años

Publicado

15 de julio de 2025

Descripción

MEMORIA DESCRIPTIVA CARACTERÍSTICAS DEL EDIFICIO - Caja de escalera de Servicio protegidas Contra Incendio por muros F60 con antecámara y puertas contra-fuego con palieres ventilados. - Portero visor 1º calidad. (Opcional) - Hall de acceso realizado con mármoles y/o porcelanato, mostrador y revest...

Características

Vista al frenteMuy luminosoCalefaccionLaundryPiletaSolariumSUMBalconCocinaLivingToiletteCocheraCon expensas

Ubicación

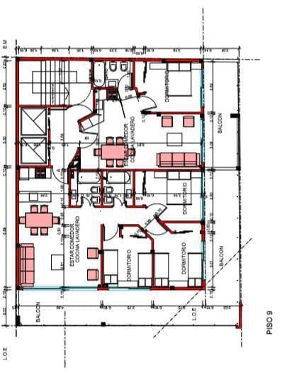
Planos

Plano 1
Plano 2
Plano 3

Análisis de mercado

Información del agente

Click Aparts

Click Aparts

¿Sos de esta inmobiliaria?

Reclamá tu perfil gratis y conseguí más leads calificados con IA. Sin comisiones, sin límites.

Conocer más

Información sobre los datos

Los derechos de los datos de esta propiedad pertenecen a la inmobiliaria correspondiente. Roomix utiliza múltiples fuentes de portales inmobiliarios como ZonaProp, Argenprop, Mercado Libre y otros para indexar y mostrar propiedades disponibles en Argentina. Esta información se presenta únicamente con fines informativos y de búsqueda.

Propiedades cercanas

Propiedades similares