Departamento en Pozo 1 Dormitorio

Apartamento · 3 ambientes · 1 dormitorios · 1 baños · 50 m²

Calle 58 Entre 13 y 14, La Plata, GBA Sur
USD 105.000
0
En venta

Características principales de la propiedad

Tipo

Apartamento

Dormitorios

1

Baños

1

Ambientes

3

Área Total

50

Área Cubierta

50

Publicado

29 de abril de 2025

Descripción

CALLE 58 ENTRE 13 Y 14 - 10 - B - La Plata.Departamento de 1 dormitorios en VentaEl emprendimiento se desarrolla en planta baja con 11 niveles más SUM, terraza y estacionamiento.En cuanto a sus características, cuenta con puertas tipo madera enchapadas y cerradura de seguridad. Los pisos serán de po...

Características

Cerca de transporte publicoBalconSin expensas

Ubicación

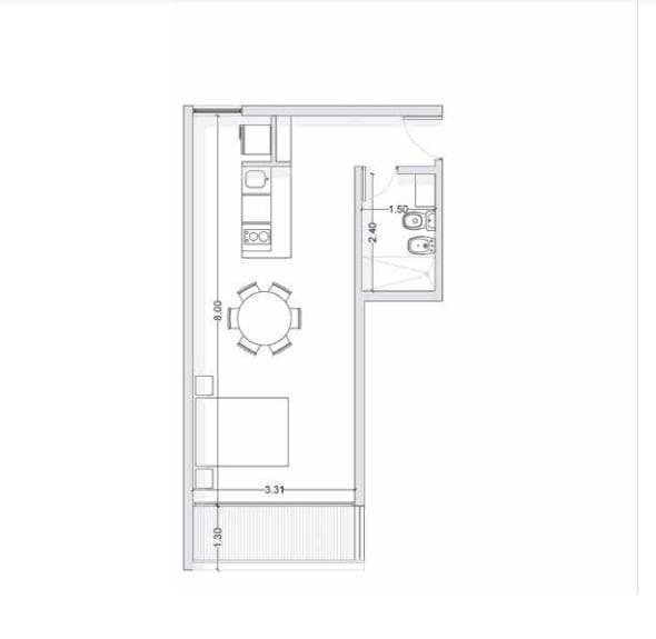
Planos

Plano 1

Análisis de mercado

Información del agente

I

Inmobiliaria

¿Sos de esta inmobiliaria?

Reclamá tu perfil gratis y conseguí más leads calificados con IA. Sin comisiones, sin límites.

Conocer más

Información sobre los datos

Los derechos de los datos de esta propiedad pertenecen a la inmobiliaria correspondiente. Roomix utiliza múltiples fuentes de portales inmobiliarios como ZonaProp, Argenprop, Mercado Libre y otros para indexar y mostrar propiedades disponibles en Argentina. Esta información se presenta únicamente con fines informativos y de búsqueda.

Propiedades cercanas

Propiedades similares