Departamento en Pozo, 2 Dorm.

Apartamento · 3 ambientes · 2 dormitorios · 1 baños · 128 m²

Calle 58 Entre 13 y 14, La Plata, GBA Sur
USD 245.000
0
En venta

Características principales de la propiedad

Tipo

Apartamento

Dormitorios

2

Baños

1

Ambientes

3

Área Total

128

Área Cubierta

108

Publicado

29 de abril de 2025

Descripción

DEPARTAMENTO A LA VENTA EN LA PLATA 2 DORMITORIOSCALLE 58 ENTRE 13 Y 14 - 10 -A - , La PlataDepartamento de categoría en construcción, 1 dormitorio en La Plata. FINANCIACIÓN EN PESOS O EN DÓLARES ACORDE A TU NECESIDAD.El emprendimiento se desarrolla en planta baja con 11 niveles mas SUM, terraza y e...

Características

A estrenarBalconCocheraCon expensasPiletaSeguridad 24hs

Ubicación

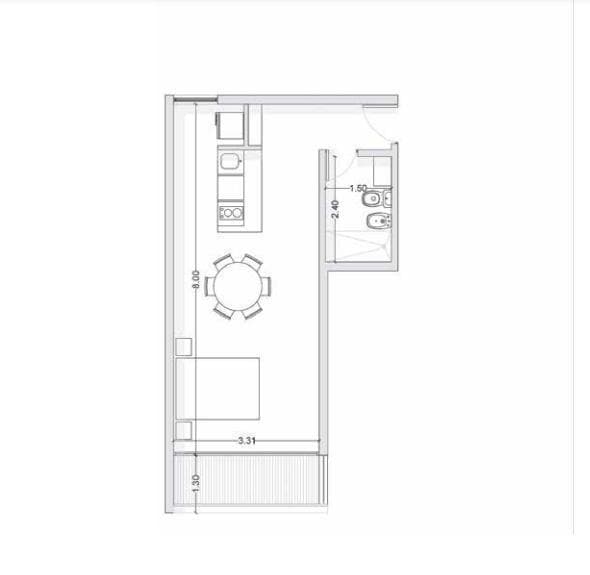
Planos

Plano 1

Análisis de mercado

Información del agente

I

Inmobiliaria

¿Sos de esta inmobiliaria?

Reclamá tu perfil gratis y conseguí más leads calificados con IA. Sin comisiones, sin límites.

Conocer más

Información sobre los datos

Los derechos de los datos de esta propiedad pertenecen a la inmobiliaria correspondiente. Roomix utiliza múltiples fuentes de portales inmobiliarios como ZonaProp, Argenprop, Mercado Libre y otros para indexar y mostrar propiedades disponibles en Argentina. Esta información se presenta únicamente con fines informativos y de búsqueda.

Propiedades cercanas

Propiedades similares