Venta Departamento 3 Ambientes con Patio Nuñez

Apartamento · 3 ambientes · 2 dormitorios · 2 baños · 153 m²

Correa al 2300, Núñez, Capital Federal
USD 320.000
0
En venta

Características principales de la propiedad

Tipo

Apartamento

Dormitorios

2

Baños

2

Ambientes

3

Área Total

153

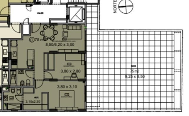
Área Cubierta

78

Publicado

4 de septiembre de 2024

Descripción

VENTA DE DEPARTAMENTO 3 AMBIENTES de 153 mts CON PATIO EN NÚÑEZ.Financiacion: 40% de anticipio y 4 cuotas semestrales de 15%IDEAL INVERSORES AIRBNB.CASA CORREAVenta de Departamento 3 ambientes en el codiciado barrio Nuñez. Este proyecto se desarrolla sobre la calle Correa a pocos metros de la Av. C...

Características

Ideal para alquilerCerca de transporte publicoBalconCocheraPiletaSolariumParrillaSUM

Ubicación

Planos

Plano 1
Plano 2

Análisis de mercado

Información del agente

I

Inmobiliaria

¿Sos de esta inmobiliaria?

Reclamá tu perfil gratis y conseguí más leads calificados con IA. Sin comisiones, sin límites.

Conocer más

Información sobre los datos

Los derechos de los datos de esta propiedad pertenecen a la inmobiliaria correspondiente. Roomix utiliza múltiples fuentes de portales inmobiliarios como ZonaProp, Argenprop, Mercado Libre y otros para indexar y mostrar propiedades disponibles en Argentina. Esta información se presenta únicamente con fines informativos y de búsqueda.

Propiedades cercanas

Propiedades similares