Departamento - Nuñez

Apartamento · 3 ambientes · 2 dormitorios · 2 baños · 73 m²

Excelente Edificio con Amenities. Av. Cabildo 4600 Piso 5º. Núñez., Núñez, Capital Federal
USD 234.000
0
En venta

Características principales de la propiedad

Tipo

Apartamento

Dormitorios

2

Baños

2

Ambientes

3

Área Total

73

Área Cubierta

65

Publicado

4 de febrero de 2022

Descripción

EXCELENTE EMPRENDIMIENTO EN OBRA a precios de PREVENTA. Inicio de Obra Abril 2021Finalización estimada Septiembre 2025.REAL OPORTUNIDAD DE INVERSIÓN.Al Contado o con posibilidad de financiación. ConsultarDepartamento de 3 Amb. con Balcón corrido en piso 2ºc, al frente. Ubicado en el barrio de Núñez,...

Características

Apto profesionalBalconCerca de transporte publicoCon expensasCocheraPiletaParrillaSUMTerraza

Ubicación

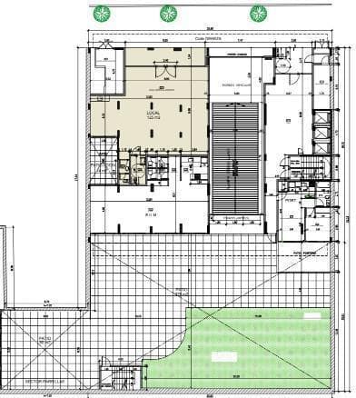
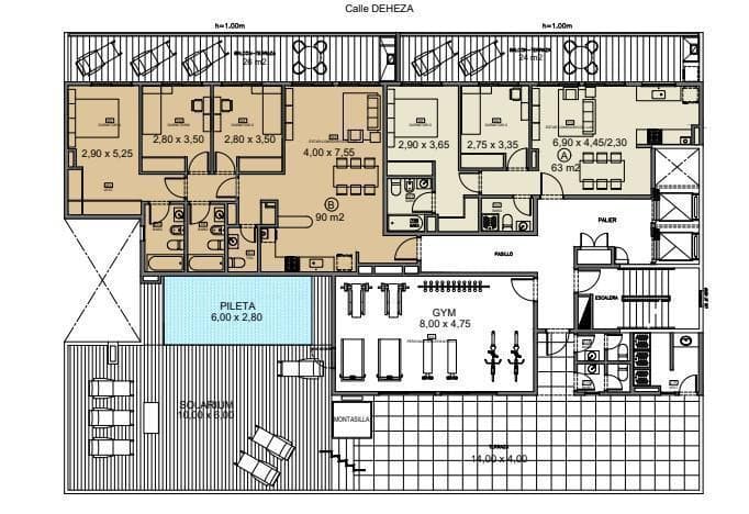
Planos

Plano 1
Plano 2
Plano 3
Plano 4

Análisis de mercado

Información del agente

I

Inmobiliaria

¿Sos de esta inmobiliaria?

Reclamá tu perfil gratis y conseguí más leads calificados con IA. Sin comisiones, sin límites.

Conocer más

Información sobre los datos

Los derechos de los datos de esta propiedad pertenecen a la inmobiliaria correspondiente. Roomix utiliza múltiples fuentes de portales inmobiliarios como ZonaProp, Argenprop, Mercado Libre y otros para indexar y mostrar propiedades disponibles en Argentina. Esta información se presenta únicamente con fines informativos y de búsqueda.

Propiedades cercanas

Propiedades similares