Departamente de 2 Ambientes en Nuñez de Pozo

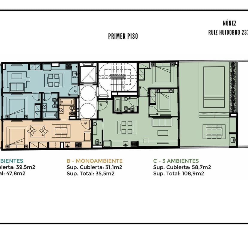
Apartamento · 3 ambientes · 2 dormitorios · 1 baños · 108 m²

Ruiz Huidobro al 2300, Núñez, Capital Federal
USD 215.000
0
En venta

Características principales de la propiedad

Tipo

Apartamento

Dormitorios

2

Baños

1

Ambientes

3

Área Total

108

Área Cubierta

58

Publicado

31 de marzo de 2025

Descripción

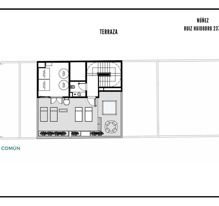
PREVENTA DE POZO, excelente Ubicación y diseño! Proyecto de 12 pisos con amenities: terraza, solárium e hidromasaje en el piso 13.Departamento de 3 ambientes al Contrafrente con excelente distribución y amplia terraza propia.Superficie:Cubierta: 58,50m²Terraza: 51,30 m²Total: 108,90 m²Financiación...

Características

TerrazaCerca de transporte publicoIdeal para alquilerEn barrio privado

Ubicación

Planos

Plano 1
Plano 2
Plano 3
Plano 4
Plano 5

Análisis de mercado

Información del agente

I

Inmobiliaria

¿Sos de esta inmobiliaria?

Reclamá tu perfil gratis y conseguí más leads calificados con IA. Sin comisiones, sin límites.

Conocer más

Información sobre los datos

Los derechos de los datos de esta propiedad pertenecen a la inmobiliaria correspondiente. Roomix utiliza múltiples fuentes de portales inmobiliarios como ZonaProp, Argenprop, Mercado Libre y otros para indexar y mostrar propiedades disponibles en Argentina. Esta información se presenta únicamente con fines informativos y de búsqueda.

Propiedades cercanas

Propiedades similares