Alquiler 3 ambientes con cochera y balcón en Recoleta

Apartamento · 3 ambientes · 2 dormitorios · 1 baños · 61 m²

Austria al 1900, Recoleta, Capital Federal
$ 1.550.000
En alquiler

Características principales de la propiedad

Tipo

Apartamento

Dormitorios

2

Baños

1

Ambientes

3

Área Total

61

Área Cubierta

51

Antigüedad

20 años

Publicado

3 de octubre de 2025

Descripción

Alquiler 3 ambientes con cochera y balcón al frente en Recoleta -Austria al 1900 entre Beruti y Juncal, a 2 cuadras de Av. Santa Fe y a 5 cuadras de Alto Palermo Shopping -Vista al frente -Cochera cubierta -Cocina integrada hecha a nueva -Toliette de recepción -Amplio balcón con cerramiento vidriad...

Características

Apto para mascotasVista al frenteOrientacion esteSeguridad 24hsBalconCocinaComedorLiving comedorToiletteEncargado VigilanciaAscensorCocheraCerca de transporte publicoCon garantiaCon expensasCerca del supermercado

Ubicación

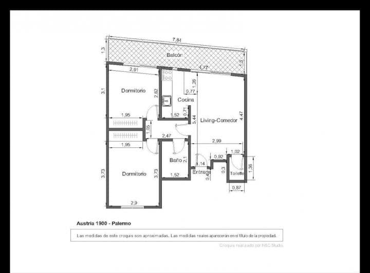
Planos

Plano 1
Plano 2

Información del agente

Pallarols Santander Propiedades

Pallarols Santander Propiedades

¿Sos de esta inmobiliaria?

Reclamá tu perfil gratis y conseguí más leads calificados con IA. Sin comisiones, sin límites.

Conocer más

Información sobre los datos

Los derechos de los datos de esta propiedad pertenecen a la inmobiliaria correspondiente. Roomix utiliza múltiples fuentes de portales inmobiliarios como ZonaProp, Argenprop, Mercado Libre y otros para indexar y mostrar propiedades disponibles en Argentina. Esta información se presenta únicamente con fines informativos y de búsqueda.

Propiedades cercanas

Propiedades similares