Flores Prop. Vende Departamento - en San Gerónimo - 2do Bloque - Pilar

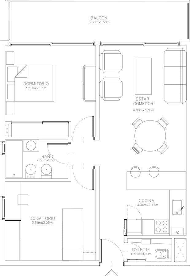
Apartamento · 3 ambientes · 2 dormitorios · 1 baños · 61 m²

San Geronimo, San Gerónimo, Pilar
USD 174.047
0
En venta

Características principales de la propiedad

Tipo

Apartamento

Dormitorios

2

Baños

1

Ambientes

3

Área Total

61

Área Cubierta

56

Publicado

30 de mayo de 2024

Descripción

PROYECTO APTO PARA EL BLANQUEO (vigente hasta el 30.09.2024)LANZAMIENTO 2DO MODULO, OFRECE FIANCIACIONHermoso y moderno departamento con arquitectura de contemporánea enmarcada en amplios espacios verdes. En construcción. Situado en el Bloque 2 del complejoEsta en el piso 4, 3 ambientes, con balcón...

Características

CocheraPiletaGimnasioTerrazaQuinchoCerca de transporte publicoCerca del hospitalPapeles al dia

Ubicación

Planos

Plano 1
Plano 2
Plano 3

Análisis de mercado

Historial de Precios

Evolución del precio desde la publicación original

USD 174.047
Precio actual
Esta propiedad subió un 2.8% su precio desde que se publicó
30 may - 25 sept
+USD 4.753(+2.8%)
Precio Original
USD 169.294
Precio Actual
USD 174.047
Cambios de Precio
2

Información del agente

I

Inmobiliaria

¿Sos de esta inmobiliaria?

Reclamá tu perfil gratis y conseguí más leads calificados con IA. Sin comisiones, sin límites.

Conocer más

Información sobre los datos

Los derechos de los datos de esta propiedad pertenecen a la inmobiliaria correspondiente. Roomix utiliza múltiples fuentes de portales inmobiliarios como ZonaProp, Argenprop, Mercado Libre y otros para indexar y mostrar propiedades disponibles en Argentina. Esta información se presenta únicamente con fines informativos y de búsqueda.

Propiedades cercanas

Propiedades similares