Drago 161 - Dto. 3 Amb. Balcón y Cochera

Apartamento · 3 ambientes · 2 dormitorios · 2 baños · 65 m²

Drago 161, Villa Crespo, Capital Federal
$ 1.200.000
En alquiler

Características principales de la propiedad

Tipo

Apartamento

Dormitorios

2

Baños

2

Ambientes

3

Área Total

65

Área Cubierta

60

Antigüedad

30 años

Publicado

4 de septiembre de 2025

Descripción

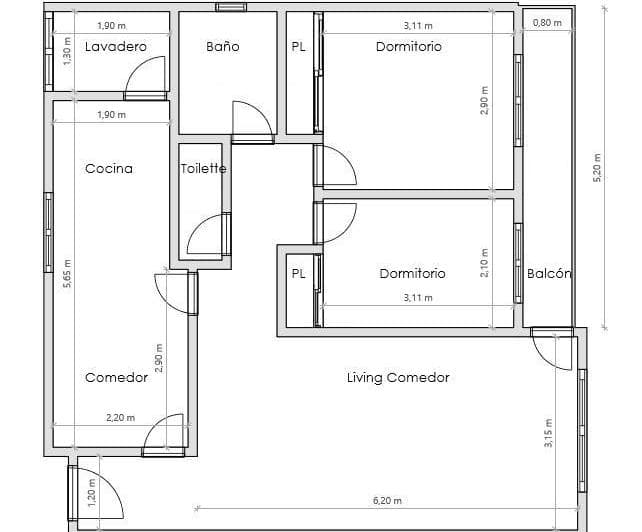
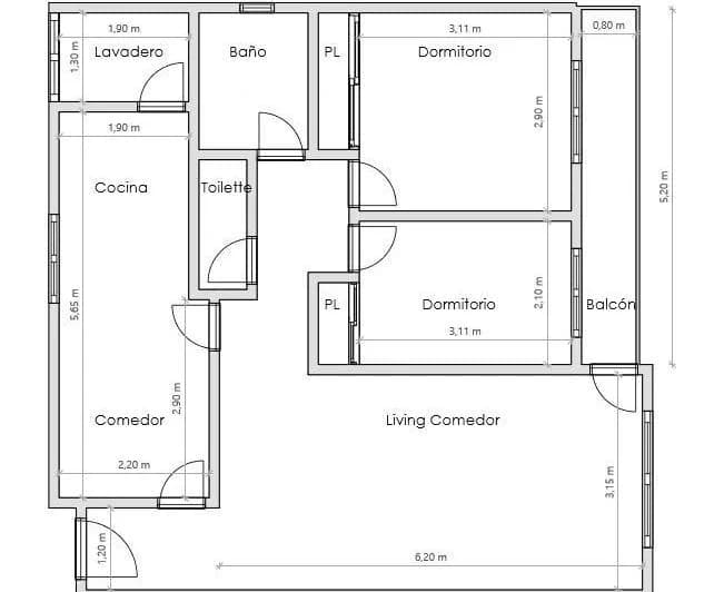
Excelente Departamento 3 Ambientes con Cochera Fija y Cubierta, Halla de Entrada, Living comedor de 6.20 x 3.10, Cocina Comedor de 5.60 x 2.10 irreg., lavadero independiente, toilette de recepción, baño completo con ventilación, Dormitorio (1) de 3.10 x 2.90 mas Placard, Dormitorio (2) de 3.10 x 2.1...

Características

Vista al frenteMuy luminosoAire acondicionadoCalefaccionBalconCocinaComedorHallLavaderoLivingLiving comedorToiletteCocina equipadaEncargado VigilanciaAscensorAccesible para personas con movilidad reducidaCocheraRecicladoCerca de transporte publicoApto creditoIdeal para alquiler

Ubicación

Planos

Plano 1
Plano 2

Información del agente

GRUPO GAONA

GRUPO GAONA

¿Sos de esta inmobiliaria?

Reclamá tu perfil gratis y conseguí más leads calificados con IA. Sin comisiones, sin límites.

Conocer más

Información sobre los datos

Los derechos de los datos de esta propiedad pertenecen a la inmobiliaria correspondiente. Roomix utiliza múltiples fuentes de portales inmobiliarios como ZonaProp, Argenprop, Mercado Libre y otros para indexar y mostrar propiedades disponibles en Argentina. Esta información se presenta únicamente con fines informativos y de búsqueda.

Propiedades cercanas

Propiedades similares