Sentire Almagro - Almagro - 1, 2 y 3 Dorm. - en Pozo

Apartamento · 4 ambientes · 3 dormitorios · 1 baños · 140 m²

Tucuman 3444. Entre Sanchez de bustamante y Bilingursth, Almagro, Capital Federal
USD 379.787
0
En venta

Características principales de la propiedad

Tipo

Apartamento

Dormitorios

3

Baños

1

Ambientes

4

Área Total

140

Área Cubierta

107

Publicado

5 de diciembre de 2024

Descripción

Venta de Departamento en  pozo Almagro, Capital Federal 6900 M2 9 pisos  de 1 a 4 ambientes    39 Unidades  de 31 a 253 m² tot. con  30 a 137 m² cub.Te presentamos un edificio de categoría destacado por su triple frente, ideal para quienes buscan comodidad, calidad y...

Características

Cerca de transporte publicoPiletaTerrazaCocheraSeguridad 24hsApto profesionalGimnasioParrillaSUMSolariumCerca de zona gastronomica

Ubicación

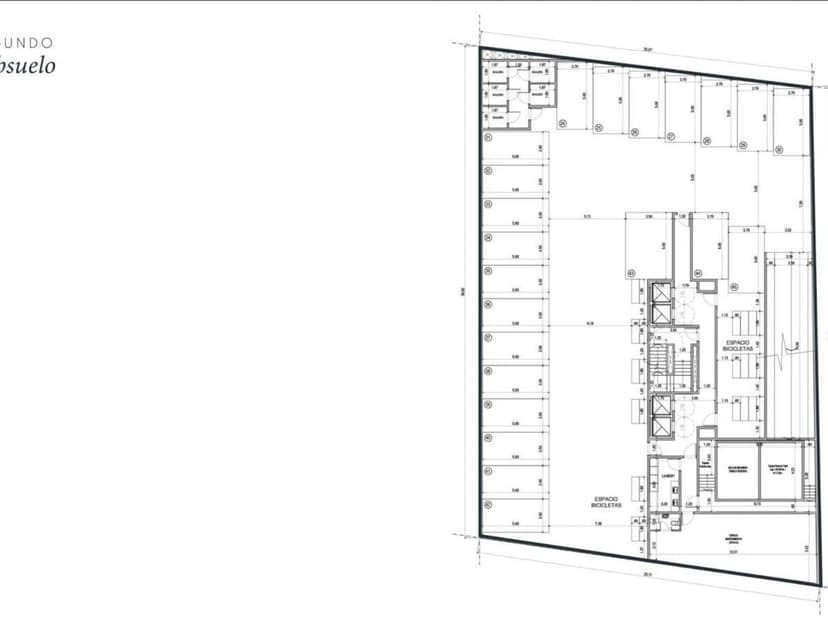
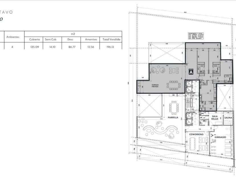
Planos

Plano 1
Plano 2
Plano 3
Plano 4
Plano 5
Plano 6

Análisis de mercado

Información del agente

I

Inmobiliaria

¿Sos de esta inmobiliaria?

Reclamá tu perfil gratis y conseguí más leads calificados con IA. Sin comisiones, sin límites.

Conocer más

Información sobre los datos

Los derechos de los datos de esta propiedad pertenecen a la inmobiliaria correspondiente. Roomix utiliza múltiples fuentes de portales inmobiliarios como ZonaProp, Argenprop, Mercado Libre y otros para indexar y mostrar propiedades disponibles en Argentina. Esta información se presenta únicamente con fines informativos y de búsqueda.

Propiedades cercanas

Propiedades similares