Departamento 4 ambientes con balcon en Belgrano

Apartamento · 4 ambientes · 3 dormitorios · 2 baños · 190 m²

Villanueva al 1300, Belgrano, Capital Federal
USD 650.000
+ $ 1.219.300 expensas
En venta

Características principales de la propiedad

Tipo

Apartamento

Dormitorios

3

Baños

2

Ambientes

4

Área Total

190

Área Cubierta

178

Antigüedad

0 años

Publicado

3 de julio de 2025

Descripción

Hermoso piso reciclado a nuevo, con excelente distribución y detalles de calidad. Cuenta con palier privado y hall de entrada que da paso a un amplio living comedor con salida a balcón corrido, ideal para disfrutar del aire libre. La cocina se encuentra incorporada al área social, ofreciendo un ambi...

Características

Vista al frenteAire acondicionadoBalconBauleraCocinaComedorDormitorio en suiteLivingToiletteVestidorCocheraCon expensasRecicladoLuminosoCon garantiaApto credito

Ubicación

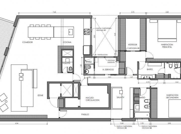
Planos

Plano 1

Análisis de mercado

Información del agente

Ezequiel Rubinowicz Negocios Inmobiliarios

Ezequiel Rubinowicz Negocios Inmobiliarios

¿Sos de esta inmobiliaria?

Reclamá tu perfil gratis y conseguí más leads calificados con IA. Sin comisiones, sin límites.

Conocer más

Información sobre los datos

Los derechos de los datos de esta propiedad pertenecen a la inmobiliaria correspondiente. Roomix utiliza múltiples fuentes de portales inmobiliarios como ZonaProp, Argenprop, Mercado Libre y otros para indexar y mostrar propiedades disponibles en Argentina. Esta información se presenta únicamente con fines informativos y de búsqueda.

Propiedades cercanas

Propiedades similares