Departamento 3 dormitorios en venta piso unico sobre Oroño

Apartamento · 4 ambientes · 3 dormitorios · 3 baños · 222 m²

Bv Oroño al 1100, Distrito Centro, Rosario
USD 430.000
+ $ 260.000 expensas
En venta

Características principales de la propiedad

Tipo

Apartamento

Dormitorios

3

Baños

3

Ambientes

4

Área Total

222

Área Cubierta

204

Antigüedad

28 años

Publicado

12 de octubre de 2025

Descripción

Venta | Piso Exclusivo 3 Dormitorios con Balcón y Cochera Boulevard Oroño 1100 – Rosario Tipología: Piso exclusivo de tres dormitorios con amplio balcón al frente y cochera. Ubicado en el cuarto piso de un edificio de categoría con excelente mantenimiento. Distribución y Características Principal...

Características

Vista al frenteOrientacion esteBalconComedorDormitorio en suiteCocheraCon expensasCerca de transporte publicoApto credito

Ubicación

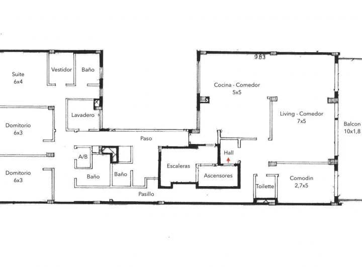
Planos

Plano 1

Análisis de mercado

Información del agente

SI INMOBILIARIA

SI INMOBILIARIA

¿Sos de esta inmobiliaria?

Reclamá tu perfil gratis y conseguí más leads calificados con IA. Sin comisiones, sin límites.

Conocer más

Información sobre los datos

Los derechos de los datos de esta propiedad pertenecen a la inmobiliaria correspondiente. Roomix utiliza múltiples fuentes de portales inmobiliarios como ZonaProp, Argenprop, Mercado Libre y otros para indexar y mostrar propiedades disponibles en Argentina. Esta información se presenta únicamente con fines informativos y de búsqueda.

Propiedades cercanas

Propiedades similares