Venta La Lucila, Departamento 4 Amb con Balcon y Terraza Propia - La Lucila - Vias/maipu

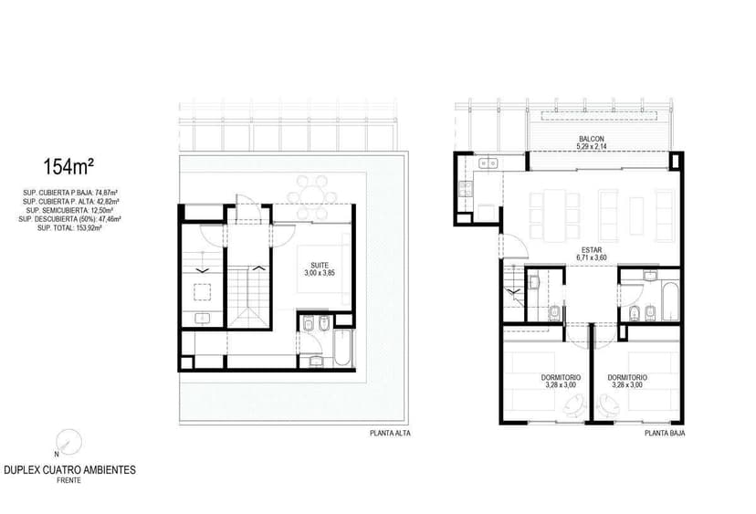
Apartamento · 4 ambientes · 3 dormitorios · 2 baños · 153 m²

Bermudez 751, La Lucila, Vicente López
USD 441.000
0
En venta

Características principales de la propiedad

Tipo

Apartamento

Dormitorios

3

Baños

2

Ambientes

4

Área Total

153

Área Cubierta

117

Publicado

16 de julio de 2024

Descripción

Se desarrolla en un terreno de doble frente. Ubicado en el centro de La Lucila. Próximo a la estación de tren Ramal Tigre/Retiro, y de varios locales comerciales.El edificio cuenta con un cantero perimetral, donde busca incorporar la vegetación al interior de las unidades.Departamento en duplex de 4...

Características

Cerca de transporte publicoBalconTerrazaCocheraAmplio living comedorEn barrio privado

Ubicación

Planos

Plano 1
Plano 2
Plano 3
Plano 4

Análisis de mercado

Historial de Precios

Evolución del precio desde la publicación original

USD 441.000
Precio actual
Esta propiedad bajó un 5.0% su precio desde que se publicó
16 jul - 25 sept
USD -23.000(-5.0%)
Precio Original
USD 464.000
Precio Actual
USD 441.000
Cambios de Precio
2

Información del agente

 Solimano Dal Pos Propiedades

Solimano Dal Pos Propiedades

¿Sos de esta inmobiliaria?

Reclamá tu perfil gratis y conseguí más leads calificados con IA. Sin comisiones, sin límites.

Conocer más

Información sobre los datos

Los derechos de los datos de esta propiedad pertenecen a la inmobiliaria correspondiente. Roomix utiliza múltiples fuentes de portales inmobiliarios como ZonaProp, Argenprop, Mercado Libre y otros para indexar y mostrar propiedades disponibles en Argentina. Esta información se presenta únicamente con fines informativos y de búsqueda.

Propiedades cercanas

Propiedades similares