VENTA DEPTO DUPLEX 4 AMB TORTUGAS NORTE PILAR

Apartamento · 4 ambientes · 3 dormitorios · 2 baños · 143 m²

Golf Club Golfers 2900, Manuel Alberti, Pilar
USD 350.000
En venta

Características principales de la propiedad

Tipo

Apartamento

Dormitorios

3

Baños

2

Ambientes

4

Área Total

143

Área Cubierta

122

Antigüedad

0 años

Publicado

12 de octubre de 2025

Descripción

Corredor Responsable: RAMIRO EL KADI CUCICBA 6534 / Erica Cano CMCPSI 6880 - Contacto: Rafael Bossio VENTA DEPARTAMENTO EN DUPLEX CUATRO AMBIENTES EN COMPLEJO TORTUGAS NORTE - PARTIDO DE PILAR Departamento 4 Ambientes en 3er y 4to Piso con vista al Frente y al Lateral, orientación noroeste, excele...

Características

Vista al frenteAlarmaParrillaPiletaBalconCocinaComedorLavaderoLivingTerrazaToiletteAscensorCocheraCerca del hospitalCerca del supermercadoApto creditoCon expensas

Ubicación

Planos

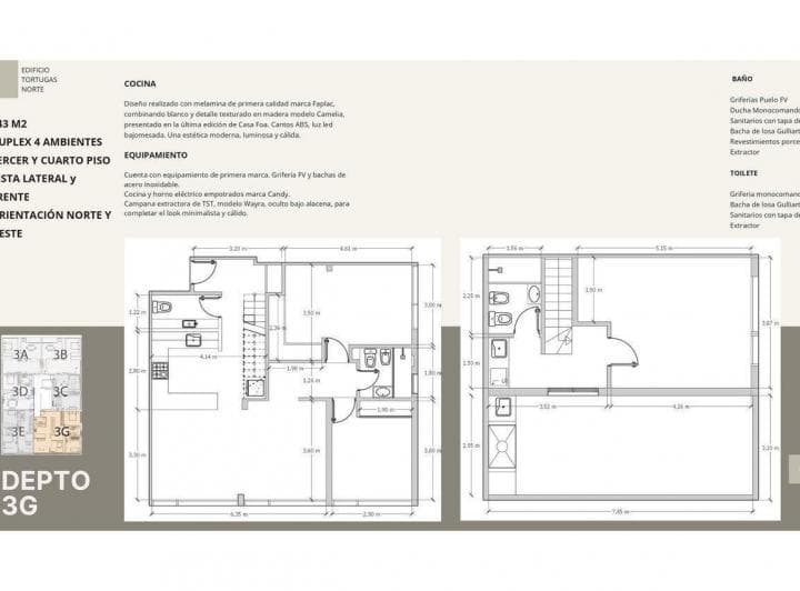
Plano 1
Plano 2

Análisis de mercado

Información del agente

RE/MAX Juntos

RE/MAX Juntos

¿Sos de esta inmobiliaria?

Reclamá tu perfil gratis y conseguí más leads calificados con IA. Sin comisiones, sin límites.

Conocer más

Información sobre los datos

Los derechos de los datos de esta propiedad pertenecen a la inmobiliaria correspondiente. Roomix utiliza múltiples fuentes de portales inmobiliarios como ZonaProp, Argenprop, Mercado Libre y otros para indexar y mostrar propiedades disponibles en Argentina. Esta información se presenta únicamente con fines informativos y de búsqueda.

Propiedades cercanas

Propiedades similares