Venta. Apto Credito. Dpto 4 ambientes. Cochera fija. Amenities. Seguridad 24 Hs. Palermo

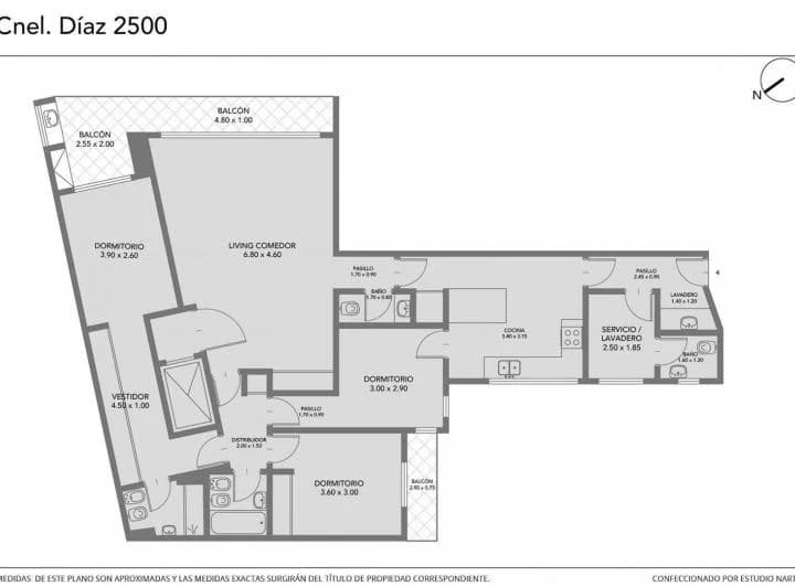
Apartamento · 4 ambientes · 3 dormitorios · 4 baños · 131 m²

Coronel Diaz 2507, Palermo, Capital Federal
USD 600.000
+ $ 760.000 expensas
En venta

Características principales de la propiedad

Tipo

Apartamento

Dormitorios

3

Baños

4

Ambientes

4

Área Total

131

Área Cubierta

119

Antigüedad

7 años

Publicado

15 de septiembre de 2025

Descripción

Excelente oportunidad en la mejor zona de Palermo, frente al Parque Las Heras. Departamento de 4 ambientes en impecable estado. Edificio de categoría diseñado por B&M Arquitectos. Características destacadas: Seguridad presencial 24/7 - Amenities: pileta descubierta, gimnasio, SUM - Cochera fija...

Características

CocheraCon expensasCerca de transporte publicoApto creditoVista al parqueAmplio living comedor

Ubicación

Planos

Plano 1

Análisis de mercado

Información del agente

Exequiel Petagna

Exequiel Petagna

¿Sos de esta inmobiliaria?

Reclamá tu perfil gratis y conseguí más leads calificados con IA. Sin comisiones, sin límites.

Conocer más

Información sobre los datos

Los derechos de los datos de esta propiedad pertenecen a la inmobiliaria correspondiente. Roomix utiliza múltiples fuentes de portales inmobiliarios como ZonaProp, Argenprop, Mercado Libre y otros para indexar y mostrar propiedades disponibles en Argentina. Esta información se presenta únicamente con fines informativos y de búsqueda.

Propiedades cercanas

Propiedades similares