Venta - Piso Exclusivo 2 Dorm. con Amenities - Barrio Martin

Apartamento · 5 ambientes · 2 dormitorios · 2 baños · 126 m²

Av. Libertad al 100, Martín, Distrito Centro
USD 450.000
0
En venta

Características principales de la propiedad

Tipo

Apartamento

Dormitorios

2

Baños

2

Ambientes

5

Área Total

126

Área Cubierta

126

Publicado

2 de enero de 2025

Descripción

VENTA - PISO EXCLUSIVO 2 DORMITORIOS CON AMENITIES - BARRIO MARTIN Piso exclusivo con vista al río. Situado frente al Parque General Manuel Belgrado, cercano al Monumento Nacional a la Bandera y al Parque Urquiza. Al ingresar nos encontramos con la cocina semi integrada con comedo...

Características

Vista al rioBalconCocheraQuinchoPiletaApto creditoCerca al parque

Ubicación

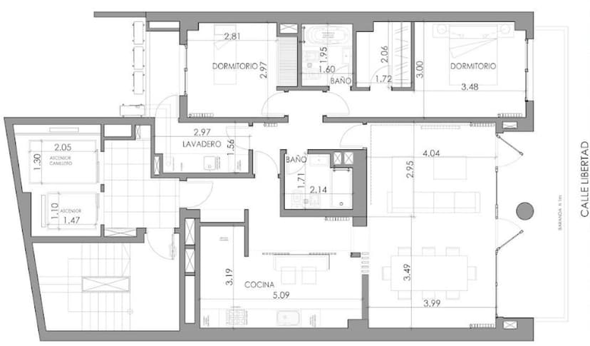
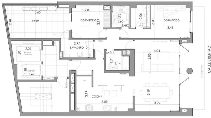
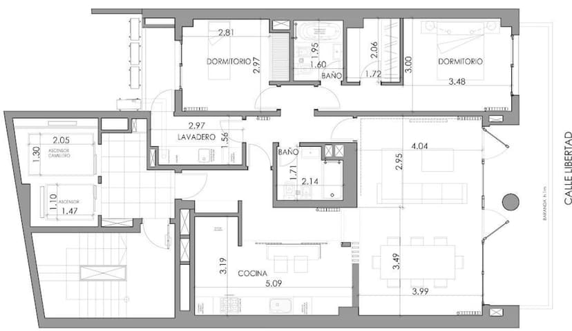
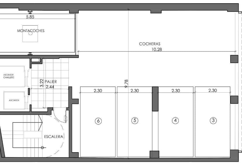
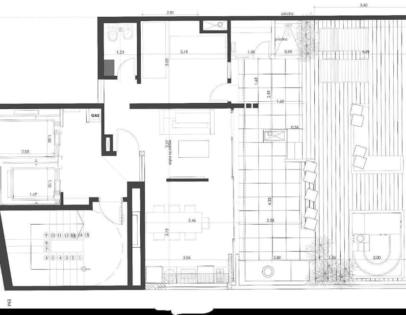
Planos

Plano 1
Plano 2
Plano 3
Plano 4
Plano 5

Análisis de mercado

Historial de Precios

Evolución del precio desde la publicación original

USD 450.000
Precio actual
Esta propiedad subió un 38.5% su precio desde que se publicó
2 ene - 11 oct
+USD 125.000(+38.5%)
Precio Original
USD 325.000
Precio Actual
USD 450.000
Cambios de Precio
3

Información del agente

I

Inmobiliaria

¿Sos de esta inmobiliaria?

Reclamá tu perfil gratis y conseguí más leads calificados con IA. Sin comisiones, sin límites.

Conocer más

Información sobre los datos

Los derechos de los datos de esta propiedad pertenecen a la inmobiliaria correspondiente. Roomix utiliza múltiples fuentes de portales inmobiliarios como ZonaProp, Argenprop, Mercado Libre y otros para indexar y mostrar propiedades disponibles en Argentina. Esta información se presenta únicamente con fines informativos y de búsqueda.

Propiedades cercanas

Propiedades similares