Venta Duplex de 3 Dorm. a Estrenar La Plata

Apartamento · 5 ambientes · 3 dormitorios · 1 baños · 127 m²

19 Entre 44 Y 45, La Plata, La Plata
USD 304.000
0
En venta

Características principales de la propiedad

Tipo

Apartamento

Dormitorios

3

Baños

1

Ambientes

5

Área Total

127

Área Cubierta

127

Publicado

22 de marzo de 2024

Descripción

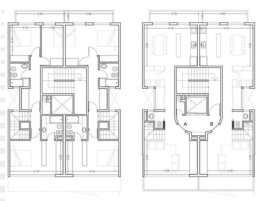
Dúplex a estrenar, ubicado en un 3º pasante desarrollado en 130 mts2. En planta baja cuenta con estar, living-comedor con cocina incorporada, balcón, toilette, instalaciones preparadas para split. En la planta alta encontramos tres dormitorios con placard y baño completo. Fecha estimada de entrega f...

Características

A estrenarBalconDuplex

Ubicación

Planos

Plano 1

Análisis de mercado

Historial de Precios

Evolución del precio desde la publicación original

USD 304.000
Precio actual
Esta propiedad subió un 20.2% su precio desde que se publicó
22 mar - 25 sept
+USD 51.000(+20.2%)
Precio Original
USD 253.000
Precio Actual
USD 304.000
Cambios de Precio
2

Información del agente

I

Inmobiliaria

¿Sos de esta inmobiliaria?

Reclamá tu perfil gratis y conseguí más leads calificados con IA. Sin comisiones, sin límites.

Conocer más

Información sobre los datos

Los derechos de los datos de esta propiedad pertenecen a la inmobiliaria correspondiente. Roomix utiliza múltiples fuentes de portales inmobiliarios como ZonaProp, Argenprop, Mercado Libre y otros para indexar y mostrar propiedades disponibles en Argentina. Esta información se presenta únicamente con fines informativos y de búsqueda.

Propiedades cercanas

Propiedades similares