Departamentos en Venta en Pozo Calle Guevara - Luján de Cuyo

Apartamento · 5 ambientes · 2 dormitorios · 1 baños · 65 m²

Calle Guevara S/n, MZA 14, Lote 5, Luján de Cuyo, Mendoza
USD 75.000
0
En venta

Características principales de la propiedad

Tipo

Apartamento

Dormitorios

2

Baños

1

Ambientes

5

Área Total

65

Área Cubierta

65

Publicado

25 de febrero de 2025

Descripción

FRANCHI INMOBILIARIA VENDE Pozo de 6 Departamentos en pleno Lujan de Cuyo! Estos cuentas con dos dormitorios con Baño, cocina-comedor y cochera techada.Venta y financiamiento de Departamentos con 2 dormitorios, 1 baño, cocina comedor y cochera cubierta, con un valor de u$s 75,000 contado. Estos espa...

Características

CocheraApto creditoIdeal para alquilerPapeles al dia

Ubicación

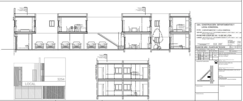
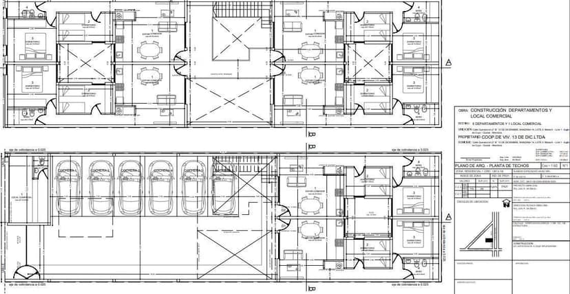
Planos

Plano 1
Plano 2

Análisis de mercado

Historial de Precios

Evolución del precio desde la publicación original

USD 75.000
Precio actual
Esta propiedad subió un 21.0% su precio desde que se publicó
25 feb - 25 sept
+USD 13.000(+21.0%)
Precio Original
USD 62.000
Precio Actual
USD 75.000
Cambios de Precio
2

Información del agente

I

Inmobiliaria

¿Sos de esta inmobiliaria?

Reclamá tu perfil gratis y conseguí más leads calificados con IA. Sin comisiones, sin límites.

Conocer más

Información sobre los datos

Los derechos de los datos de esta propiedad pertenecen a la inmobiliaria correspondiente. Roomix utiliza múltiples fuentes de portales inmobiliarios como ZonaProp, Argenprop, Mercado Libre y otros para indexar y mostrar propiedades disponibles en Argentina. Esta información se presenta únicamente con fines informativos y de búsqueda.

Propiedades cercanas

Propiedades similares