Departamento 2 Dorm. - Parque Independencia - Abasto

Apartamento · 6 ambientes · 2 dormitorios · 2 baños · 68 m²

Moreno al 1900, Rosario, Santa Fe
USD 130.000
0
En venta

Características principales de la propiedad

Tipo

Apartamento

Dormitorios

2

Baños

2

Ambientes

6

Área Total

68

Área Cubierta

65

Publicado

27 de junio de 2024

Descripción

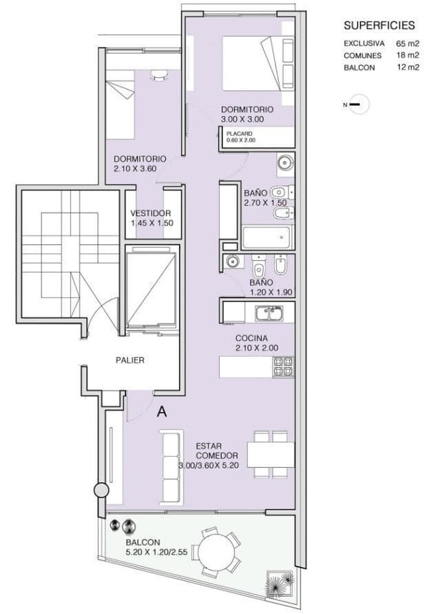
Semipiso 2 dormitorios, orientación Este, Ventilación Cruzada , entrega MARZO 2025. FRENTE AL PARQUE INDEPENDENCIA.Dos dormitorios, uno con vestidor, amplio estar-comedor de 23 m2. Aberturas de aluminio, Doble Vidrio Hermético (DVH). Balcón al contrafrente Este. La cocina equipada con amoblamiento...

Características

Orientacion esteCon expensasApto creditoA estrenarPiletaTerrazaCocheraQuinchoVista al parque

Ubicación

Planos

Plano 1
Plano 2
Plano 3
Plano 4

Análisis de mercado

Información del agente

I

Inmobiliaria

¿Sos de esta inmobiliaria?

Reclamá tu perfil gratis y conseguí más leads calificados con IA. Sin comisiones, sin límites.

Conocer más

Información sobre los datos

Los derechos de los datos de esta propiedad pertenecen a la inmobiliaria correspondiente. Roomix utiliza múltiples fuentes de portales inmobiliarios como ZonaProp, Argenprop, Mercado Libre y otros para indexar y mostrar propiedades disponibles en Argentina. Esta información se presenta únicamente con fines informativos y de búsqueda.

Propiedades cercanas

Propiedades similares